Archiv autora: admin

podolský byt

podolský byt

Změna dispozice a proměna interiéru bytu
Realizace 2026

Cílem úprav bytu z roku 1955 bylo vytvořit vhodné univerzální dispoziční a interiérové řešení pro pražský podnájemní byt. Navržené řešení se vyznačuje otevřením obytného prostoru, zvýšením komfortu a maximalizací úložných kapacit.

Původní chodbová dispozice, z níž byly jednotlivé pokoje přístupné, byla transformována do otevřeného konceptu 2+kk. Propojení pokojů s chodbou umožnilo lepší prosvětlení přirozeným světlem. K výraznému zlepšení a provzdušnění interiéru přispěl také sjednocený základ bílé výmalby, odstranění podhledů a otevření prostoru k železobetonové konstrukci trámového stropu. Interiér je doplněn světlou barevností truhlářských vestaveb laděných do jemných pastelových odstínů. Podlahové krytiny a vnitřní dveře byly nahrazeny novými, koupelna byla zvětšena a přímo propojena s chodbou i ložnicí, což zvýšilo uživatelský komfort.

Projekt byl realizován v rozsahu „přepříčkování bytu“ bez jakéhokoli zásahu do nosných konstrukcí. Součástí rekonstrukce byla kompletní obnova zdravotnětechnických rozvodů, elektroinstalace a vzduchotechniky. Vytápění je centrální a nebylo do něj zasahováno. Povrchy stěn a stropů byly nově upraveny s ohledem na mikroklimatické podmínky v interiéru. Použití klimatických omítek zajistí lepší regulaci vlhkosti a eliminaci tepelných mostů, které by mohly způsobovat vznik plísní.

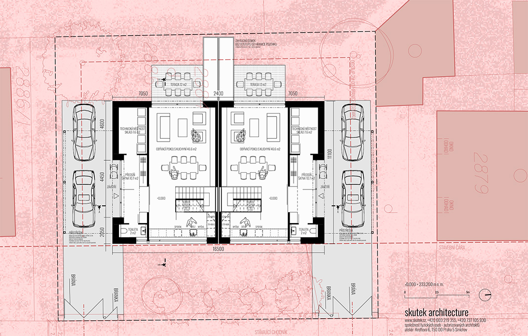
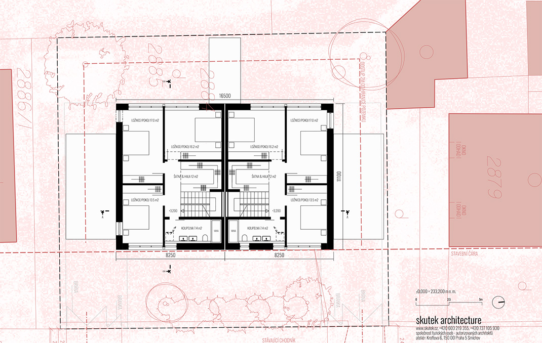
rd úvalská

rd úvalská

Novostavba rodinného dvojdomu
Projekt 2025

Architektonický návrh novostavby rodinného dvojdomu v ulici Úvalská v pražských Strašnicích reaguje na historicky hodnotný a urbanisticky stabilizovaný kontext vilové čtvrti s heterogenní strukturou zástavby. Projekt nahrazuje stávající, stavebně i dispozičně nevyhovující objekt z první poloviny 20. století novou stavbou, která respektuje tradici dvojdomů řazených v přímé linii ulic. Citlivý zásah soudobé architektury do historického kontextu Strašnic respektuje měřítko i atmosféru místa.

Návrh tvoří dvojici zrcadlově uspořádaných rodinných domů, propojených do kompaktního objemu, přičemž každý z bytů si zachovává vlastní provozní i prostorovou autonomii. Hmotové řešení je střídmé, vychází z jednoduché kubické formy, doplněné jemným rytmem fasádních otvorů a výtvarným akcentem ustoupeného podlaží se střešními terasami. Dispoziční koncept je univerzální a umožňuje flexibilní využití prostoru, včetně jednoduchých budoucích úprav horního podlaží. Konstrukční a materiálové řešení kombinuje tradiční zděnou nosnou strukturu s lehkou nástavbou posledního podlaží. Barevné varianty domu umožňují buď nenápadně splynout se zelení a městským prostředím, nebo nabídnout uměřeně výraznější interpretaci tradičních materiálových tónů lokality.

rd nebušice

rd nebušice

Vila v Praze
Projekt 2025

Rodinná vila se dvěma samostatnými bytovými jednotkami je umístěna na pozemku na pomezí městské zástavby a volné krajiny. Lokalita se vyznačuje rozvolněnou strukturou rodinných domů, vznikajících převážně od 90. let 20. století, s individuálním architektonickým výrazem a bez výrazného jednotícího charakteru.

Architektura vily je založena na principech jednoduchosti, funkčnosti a střídmé estetiky. Dispoziční řešení pracuje s výhledy z vyšších podlaží a efektivně využívá svažitost pozemku. Obě bytové jednotky mají samostatné vstupy ze společné předsíně, na kterou navazuje garáž s vyšší světlou výškou. Přízemní byt je přímo propojen se zahradou prostřednictvím teras, zatímco byt v patře disponuje střešní terasou s atraktivními výhledy do okolní krajiny.

Návrh předpokládá využití konstrukcí a stavebních výplní odpovídajících standardům pasivních domů, instalaci fotovoltaických panelů, řízené větrání s rekuperací tepla a hospodaření s dešťovou vodou. Dům tak reaguje jak na specifika místa, tak na současné požadavky na kvalitní, komfortní a udržitelné bydlení.



rd chrást

rd chrást

Přestavba vily z roku 1962
Projekt 2025

Přestavba je rozfázována do tří etap, přičemž realizaci je možné ukončit v kterékoli z nich bez nutnosti pokračovat v dalších. Cílem návrhu je modernizace dispozičního řešení, zlepšení technických a energetických parametrů stavby a současně zachování podstaty původního architektonického charakteru. První etapa zahrnuje úpravy suterénu a přízemí, zateplení fasád, výměnu stavebních výplní, nové omítky a zřízení parkovacího stání. Druhá etapa, uvažovaná s časovým odstupem přibližně deseti let, předpokládá vestavbu podkroví nebo přístavbu dalšího nadzemního podlaží, a to bez kolize s úpravami provedenými v první fázi.

Návrh zachovává půdorysnou stopu i základní konstrukční systém domu se středovou nosnou stěnou a optimalizuje vnitřní dispozice podle současných standardů. Přesunutí schodiště do centra dispozice umožňuje efektivní propojení všech úrovní objektu. Okenní otvory respektují původní rytmus fasád, jsou však zvětšeny za účelem zajištění kvalitního prosvětlení interiéru. Součástí řešení je rovněž úprava vstupu na pozemek, parkování, terénních úprav a zpřístupnění zahrady.

Technologické řešení zdůrazňuje energetickou efektivitu, použití kvalitních výplní a přípravu objektu na budoucí technologické změny.

komařice

komařice

soutěžní návrh spolkového domu v Komařicích
projekt 2023

Řešené místo disponuje půvabem venkovských staveb a krásou nahodilosti. Architekturu, vrstvenou desítky let, chráníme a posilujeme přidáním nové vrstvy. Sál s převýšenou střechou měřítkově vyvažuje dominanty v obci, čerpá ze stavební historie a nekonkuruje hájence. Trasa k zahradě je kryta zápražím, které propojuje sál, hospodu i stodolu. Ta je z hlediska zachování venkovského charakteru místa důležitá a násobí univerzalitu využití spolkového domu. Na dlážděném dvoře, středobodu dění, se snoubí bezbariérový pohyb chodců, cyklistů, obecní techniky i zásobování a za humny jej střídá klid zahrady. Kolnu s garáží jde opravit úsporně v duchu původního stavitelství a využít jako zázemí pro obecní techniku. Rekonstrukce hájenky vrací stav co nejblíže k původnímu vzhledu. Komorní komunitní prostor knihovny vkládáme do hospodářské části za hájenkou, čímž můžeme oživit dnešní rozpačitý prostor a proměnit ho ve vlídné místo. Provozní řešení zajišťuje přehlednost a adaptabilitu, energetická koncepce klade důraz na hospodárnost a využití obnovitelných zdrojů.

Region: Komařice a Doudlebsko
Charakter regionu povodí Malše je historicky určen výrazově velmi střídmou venkovskou architekturou. Stavby jsou zdobeny křehkým detailem, plasticita štítů je jemná a sklony střech jsou spíše nízké. Komařickou zvláštností jsou stavby zámku a sýpky, vymykající se měřítkem a převýšeným sklonem střech.

Architektura: dotyk nového a starého
Řešené místo se nachází v geometrickém středu obce a záměru vytvořit společenské centrum obecního života dobře vyhovuje. Historická hájenka s mansardovou střechou je obklopena hospodářskými přístavbami, koncipovanými na základě terénní morfologie a utilitární potřeby. Dnešní podoba souboru budov disponuje značným půvabem, krásou nahodilosti, kvalitou stavebních prvků a množstvím roztomilých zákoutí. Tyto hodnoty byly vrstveny po desítky let, jsou nenahraditelné a podstatou návrhu je jejich zachování a posílení přidáním respektující nové architektury. Celková koncepce chrání dochované architektonické detaily, stavební prvky a materiály.

Obecní úřad: citlivá rekonstrukce hájenky
Rekonstrukce je navržená ohleduplně, se zachováním a obnovou historických prvků i dispozice do podoby co nejbližší zjištěnému původnímu stavu. Fasáda objektu zůstává z důvodu ochrany památky nezateplená. Půda a krov jsou ponechány ve stávajícím stavu jako případný prostor pro budoucí rozvoj. Na podlaze půdy bude položena tepelná izolace, zlepšující tepelné vlastnosti objektu. Nový bezbariérový přístup do úřadu uchovává zvýraznění vstupu schodištěm a je připomínkou dřívějšího společenského zápraží.

Knihovna: vložená do stávající hospodářské části hájenky
Komorní komunitní prostor knihovny vkládáme do hospodářské části za hájenkou, což promění dnešní rozpačitý prostor ve vlídné místo. Do historické stavby, z níž bude zachována obálka včetně konstrukce krovu, je vložena samonosná konstrukce vlastní knihovny metodou „dům v domě“, zateplená na pasivní standard. V charakteru interiéru převažuje přírodní dřevo na stropech, stěnách i podlahách. Místa dotyku nového a starého jsou místy vypointování architektonického výrazu: nové otvory do fasády mají současný charakter, prostor osvětluje a v zimě ohřívá výrazné střešní okno. Zachování historie není ctnost z nouze, ale výraz úcty k dílu našich předků; přesto však jsou nové prvky dnešní, sebejisté, nepodbízí se představě o minulosti.

Kolna a garáž: skrytý architektonický podklad, který lze uchovat a využít pro zázemí obce
Zázemí pro obecní techniku lze snadno umístit do stávajících objektů, které byly k podobnému účelu zřízeny, a které jde snadno opravit či doplnit zabezpečením velmi úsporně, v duchu původního stavitelství, s plným zachováním historické stopy. Čím menší zásahy do stávajících budov budou provedeny, tím více bude zachován duch místa.

Stodola: zachování znásobí univerzalitu využití obecního zázemí
Stavba je z hlediska zachování venkovského charakteru místa klíčová. Vytváří typický předěl mezi hospodářským dvorem a sadem a toto dělení má smysl zachovat i nadále: živý dlážděný veřejný prostor směrek k ulici střídá za humny klid zahrady nabízející bezpečný rozlet dětem a odpočinek návštěvníkům. Stodola násobí univerzalitu využití spolkového domu, mohou v ní být např. stánky vánočních trhů, chovatelské výstavy, letní či svatební rozšíření pro hospodu, šatna pro náročnější vystoupení početného souboru, dočasný sklad apod. Široká vrata, původně určená pro průjezd vozů se senem, mohou sloužit k vzájemnému propojení či oddělení dvora a zahrady.

Stávající budovy stodoly, kolny a přístavku za knihovnou jsou renovovány pouze lokálně, fasády opatřeny bílým nátěrem blízkým původní vápenné omítce. Dřevěné prvky i krovy zůstávají zachovány, opravovány budou pouze v nutných případech, se snahou zachovat co nejvíce z charakteru minulosti. Střešní krytina bude renovována pokud možno pouze lokálně. Poškozené nebo dosloužilé nosné konstrukce budou nahrazeny novými, dřevěnými případně ocelovými prvky. Podlaha bude upravena dle požadavků stavebního průzkumu a dle potřeby provozu, může být stávající, litá betonová, dlážděná zbytky cihel z demolice čp.5 apod.

Spolkový dům a hospoda: nová stavba v duchu lokálních tradic
Nová stavba spolkového sálu s hospodou svým větším měřítkem a mírně převýšenou střechou odkazuje na zámek a sýpku, dominanty obce, ke kterým se svým významem může a má přiřadit. Architektonický výraz budovy je střídmý, čerpá ze stavební historie v regionu a nesnaží se konkurovat historické hájence či zámecké věži. Stavba je v duchu lokální tradice zděná, s dřevěným krovem a dřevěnou podlahou. Konstrukční koncepce upřednostňuje jednoduchost, snadné provedení stavebních detailů a snadnou údržbu. Obálka budovy bude zateplena v pasivním standardu. Výtvarný potenciál novostavby je vyjádřen kultivovaným moderním detailem.

Krajinářské řešení: k oživení zahrady přispívá propojení s hospodou
Otevřené dlážděné nádvoří před společenským sálem i předpolí knihovny umožňují bezbariérový pohyb chodců, cyklistů i zásobování. Ve dvoře se setkává provoz společenského domu s provozem obecních služeb, což podporuje inkluzi různých zájmových skupin. U hájenky je v souladu s historickým stavem navržena výsadba lípy. Před vstupem do hájenky je zřízeno zápraží, umožňující bezbariérový vstup do objektu i neformální posezení na schodech před úřadem. Na zadní vchod hájenky navazuje předprostor knihovny, poskytující intimnější společenský prostor pro návštěvníky knihovny nebo úřadu.

Trasa kolem vstupu do spolkového domu k zahradě je kryta zápražím, které lze propojit se sálem, hospodou i stodolou. Tento prostor slouží jako intuitivní orientační jádro pro množství společenských aktivit, které návrh nabízí. Úzký průchod do zahrady dává zahradě klidový polosoukromý charakter, a umožňuje jednoduchou kontrolu vstupu. Zahradu lze velkoryse otevřít a propojit s hospodou i stodolou. Zděná část skleníku zůstává zachována pro hřiště pro nejmenší děti.

Koncept umožňuje etapizaci výstavby dle dostupných finančních prostředků. Jednotlivé etapy jsou vzájemně nezávislé a umožňují samostatnou funkčnost.

Energetická koncepce: hospodárnost a využití obnovitelných zdrojů
V hájence je z důvodu ochrany památky navrženo pouze částečné zateplení. Vytápění je lokální, odpovídající občasnému provozu. Sklady a garáže jsou nezateplené, bez nároků na vytápění. Novostavba spolkového domu a vestavba knihovny splňují všechny legislativní požadavky na budovy s téměř nulovou spotřebou energie. Technické zázemí je navrženo v podkroví nad zázemím společenského sálu. Velká střešní okna orientovaná k jihovýchodu v dopoledních hodinách ohřívají vnitřní prostory a udržují v interiéru přijatelnou vnitřní teplotu bez nutnosti vytápět. Střechy, které nenaruší charakter území, jsou osázeny fotovoltaickými panely.

Voda: návrh umožňuje využití dvou stávajících studní pro zásobování do doby napojení na obecní vodovod. Stanice pro úpravu vody je umístěna v technické místnosti nad zázemím sálu. Po přepojení na vodovod může být studna dále využívána pro zálivku zahrady, mytí nádobí nebo splachování.

Dešťová voda: dvě stávající žumpy navrhujeme využít pro svod dešťové vody ze všech střech řešeného území. Lze takto získat až 80% roční spotřeby vody, která bude využita pro zálivku zeleně a splachování.

Kanalizace: čistička je z legislativních a ekonomických důvodů v dané lokalitě nevhodná. Na množství odpadních vod bude mít zásadní vliv provoz hospody a toalet, kde lze uplatnit úsporná opatření (myčka místo výčepní stolice s trvalým průtokem, suché pisoáry apod.) Návrh předpokládá zřízení nové žumpy na uličním okraji dvora. Kanalizace je nově společná pro všechny řešené objekty.

hrobka v čb

hrobka v čb

návrh stavebních úprav hrobky na hřbitově Sv. Otýlie v Českých Budějovicích
projekt 2023

Hřbitov svaté Otýlie je největším českobudějovickým hřbitovem, založeným v roce 1887. Místo, kde se nachází upravovaná hrobka, tvoří součást původního prostorového uspořádání nejstarší části hřbitova, nacházející se v souvislé řadě hrobek u jižní ohradní zdi. Úsek zdi, u které je hrobka situovaná, odděluje historické pohřebiště od nově vystavěné obřadní síně a krematoria ze 70. let 20. stol.

Pás hrobek při vnitřní straně zdi se vyznačuje bohatou rozmanitostí náhrobků a rovů. Původní koncepce precizně pravidelného uspořádání s podobnými typy náhrobků během 20. století vymizela. Pravděpodobný původ řešené hrobky datujeme k počátku 20. let 20. stol. Náhrobek je z tmavé hladké žuly, zpracované do geometrické formy, zužující se k vrcholu zakončenému trojúhelníkovou špičkou. Světlé nápisy jsou provedené na dvou tabulích z černého skla, v rozích připevněných k náhrobku šrouby s ozdobnými čepičkami. Jednoduchý betonový sokl zakrývá funkční železobetonovou skořepinu podzemní části hrobky. Rovová deska z opracovaného pískovce je složena ze tří dílů a geometricky je tvarována do pravidelného klínu s obdélníkovou podstavou.

Současně s návrhem stavebních oprav kvůli špatnému technickému stavu jsme posoudili architektonický vzhled hrobky a rozhodli se věnovat její důstojné roli v rámci celkového prostorového uspořádání hřbitova, přičemž rozmanitost pásu hrobek při hřbitovní zdi k tomu přímo vybízela. Architektonická úprava vychází ze souladu s prostorově-rytmickým uspořádáním hrobek na pohřebišti a potřebou zohlednit postupné zhušťování a rozšiřování hrobek, stejně jako širší výtvarnou souvislost s novým krematoriem.

Symboliku opuštění hmotného pouta se Zemí, odchodu a putování duše, ztvárňuje subtilní linka z bronzového pásku s nápisy po stranách, která v kontextu okolních betonových ploch a kamenných prvků působí křehce a lehce. Při příchodu k hrobce je širší bok náhrobku zdálky viditelný, zatímco před hrobem je z čela tenký a nenápadný, čímž dává vyniknout desce rovu. Přesah bronzového náhrobku přes hřbitovní zeď v některých chvílích rozzáří slunce v pozadí, čímž opticky rozostří hranu prvku a nepřímo tím vyjádří téma odchodu z tohoto světa, otázku bytí a nebytí. Tenká vertikála citlivě doplňuje pestrou škálu okolních náhrobků a souvislost pásku s římsou zdi vykresluje náhrobek do nenápadného kříže.

Krycí deska s rámem rovu jsou navržené ze světlého prefabrikovaného betonu. Jako odolný a snadno čistitelný materiál je možné zvolit současný progresívní voděodolný beton s životností 200 let. Puristické pojetí se vyhýbá zbytečně komplikovaným detailům, a tudíž budoucím poruchám. Detail lemování rovové desky zesiluje souvislost s náhrobkem ve formě bronzového pásku.

rd opuková

rd opuková

přestavba řadového rodinného domu v Praze Řepích
realizace 2023 

Ulici lemují převážně volně stojící domky horních starých Řep, místy sdružené do krátkých řad a v průběhu let živelně přestavované. Urbanismus charakterizuje struktura zahradního města.

V roce 1928 je dům prostředním z pěti jednopodlažních rodinných domků v řadě, které tvoří ucelený architektonický celek. 1961 se proměnil nejen původní objem domu, v té době se díky dřívějším změnám sousedních domů vytratil také jednotný vzhled skupiny pěti domů. 2019 už výrazové pojítko mezi domy neexistuje a obnova původního vzhledu skupiny není realistická. 

Výchozím rámcem navržené přestavby se stal klidný a střídmý výraz, nekonfliktní s rozličnostmi stávajících i budoucích domů v sousedství. Tvarově jednoduchý, ortogonálně řezaný koncept objemu je zakončen rovnou střechou rozdílných výšek. Středové vyvýšení vyvěrá z dětských pokojů v patře a navenek náznakem odtajňuje prostorovou rozmanitost skrytou uvnitř domu. Dispozicí prostupuje prolínání společně sdílených prostor, vystavěné pro jednu dvougenerační bytovou jednotku. Sochařský přístup k práci s vnitřním prostorem, rozličnými výškami stropů se světlíky a zářezy pomáhá rovnoměrné distribuci světla a proslunění hluboké dispozice.

kozna

staroměstský byt

staroměstský byt

adaptace bytů se společnou pavlačí na Starém Městě pražském
realizace 2023

Původní dispozice sestávající se z několika malých bytů s kuchyní do dvora, společného zázemí a úzké střední chodby zakončené dřevěnou pavlačí, byla odsouzena k postupnému vybydlování. Adaptace prostoru na jeden velký byt nám umožnila spojit komfortní užívání s obnovením původního charakteru interiéru s výhledy na moře červených střech v blízkosti Staroměstského náměstí.

0-kozna-1610

Nová dispozice s obývacím pokojem a čtyřmi ložnicemi je vystavěna podél střední chodby na principu zónovaného půdorysu. Denní část s hlavním pokojem a kuchyní obrácenou do dvora je nejblíže vchodu. Kuchyně, jak tomu bylo dříve, je samostatnou místností, ale spojení s hlavním pokojem je posíleno natolik, že spojuje prostor do jednoho funkčního celku.

1-kozna-1610
2-kozna-1610
3-kozna-1610
4-kozna-1610
6-kozna-1610

Klidnější část bytu s ložnicemi je dál od vchodu a do prostorné koupelny se vstupuje z původní dřevěné pavlače. Předprostor koupelny je přímo otevřený na pavlač, zatímco navazující část s vanou a sprchovým koutem je uzavřena v samostatné místnosti. Byt je vybaven komorou a technickou místností s tepelným čerpadlem pro podlahové vytápění a chlazené stropy. Dispozice je navržena s ohledem pro případ potřeby bezbariérového užívání.

5-kozna-1610
7-kozna-1610
8-kozna-1610
9-kozna-1610
10-kozna-1610

Nově vkládané prvky interiéru jsou charakteristické jednoduchostí a střídmou barevností, s cílem zdůraznit dochované historické prostředí, aniž by ho přehlušily. Původní architektonické prvky byly buď zachovány, obnoveny nebo nahrazeny replikami. Nábytek a vybavení byly navrženy přímo ve spolupráci s budoucími obyvateli.

11-kozna-1610
12-kozna-1610
13-kozna-1610
gemo-axo

gemo

gemo

interiér kanceláří stavební firmy, BB Centrum Brumlovka v Praze
projekt 2023

VÝCHOZÍ STAV
Stávající interiér má kvality v podobě kultivovaného uspořádání dispozice, estetického materiálového a barevného provedení, a zajímavé kombinace skleněných příček a montovaných nábytkových modulů. Nicméně, bylo třeba přehodnotit vhodnost pro nové využití prostoru.

1. Vstupní část je dlouhá a tmavá, není atraktivní a nelze jí smysluplně využít.
2. Recepce je příliš vzdálená od vstupu a není snadno viditelná.
3. Prosklený showroomu je nevyužívanou bariérou v prostoru.
4. Back office je oddělena od ostatních pracovních míst a je překážkou v komunikaci mezi zaměstnanci.
5. Polootevřená kancelář za zády recepce působí rozpačitě.

VÝCHODISKA
Výchozím předpokladem pro změnu interiéru je otevření prostoru, zvýraznění stavebního charakteru a posílení identity firmy. Vzniká pracovní prostředí, kombinující syrovost vložených průmyslových prvků a eleganci stávajícího zařízení interiéru, jehož barevnost je ponechána a doplněna akcentem firemní barvy Process Magenta.

VARIANTA LEŠENÍ
Návrh spočívá v jednodušší a levnější úpravě interiéru, minimalizaci změn. Do stávající dispozice je vložena prostorová struktura, která je vystavěná ze stavebního lešení natřeného ve firemní barvě. Výsledkem je uplatnění výrazné výtvarné stopy jako odkazu na estetiku stavebního průmyslu a propojení identity firmy s interiérem. Recepce není zdůrazněna nad rámec ostatních prvků.

VARIANTA ARMATURA
Změny interiéru uvolňují dispozici ve vstupní části, prosvětlují prostor a vnáší prvky připomínající stavební proces. Centrální recepce je umístěná v jádru kanceláří, propojuje pracovní, jednací a společné prostory. Na dosah recepce vzniká místo k pořádání školení a seminářů. Atraktivita interiéru tkví ve spojení kultivované estetiky administrativních prostor se syrovostí stávajících a nově vložených stavebních prvků. Recepčním pultem je rameno z prefabrikovaného betonového schodiště a pod strop je doplněn rastr z výztužných sítí ve firemní barvě, který od recepce paprskovitě zasahuje do všech směrů dispozice.

BAREVNOST A MATERIÁLY
Současná materiálová paleta v interiéru je kultivovaná a kombinace barev působí harmonicky. Pastelové a bílé plochy poutavě vystupují z převažujícího tmavě šedého rámce v kombinaci se světlejším dřevem. Neutrálně založené pojetí interiéru vybízí k doplnění pastelové škály barev, uplatňujících se v plochách, výraznějším barevným akcentem. Firemní barva Process Magenta v takto založeném interiéru vyznívá působivě a stavebním prvkům propůjčuje osobité kouzlo potřebné výtvarné zkratky.

gemo-2gemo-3gemo-4gemo-5gemo-6gemo-7gemo-8

bojov

bojov

úprava chaty u potoka v Bojově, Čisovice

realizace 2022

Domek v chatové osadě na úpatí brdských kopců při Dobříšské větvi Posázavského Pacifiku je vsazený do mělkého meandru mezi potok a železniční trať. Původně dřevěná chata byla přestavěna na zděný dům, ze strany potoka byla dříve přistavěna terasa, později adaptovaná na verandu a dílnu v suterénu. Na břehu potoka je pozemek se stavební parcelou koncipován do dvou výškových úrovní, domek hraničí s potočním korytem a rovinatou zahradu spojuje s domkem železobetonová lávka.

Originální hmota zděné stavby se dvěma pokoji a chodbou byla zachována. Technický stav verandy přistavěné v padesátých letech neumožnil zachování, na staticky sanovaném suterénu je tudíž vystavěná nová dřevěná konstrukce, respektující stávající půdorysnou stopu. Výtvarná a hmotová koncepce přístavby nachází vztah ke zděnému originálu a odkazuje na poetiku místa letních domků a chat, jejichž středobodem jsou verandové pokoje s kuchyní v přímém kontaktu s venkovním zápražím či terasou a zahradou.

za papírnou

za papírnou

soutěžní návrh městského hybridního bydlení v Praze Holešovicích, který umožní sociální a generační mix včetně možnosti ubytování osob se zdravotním postižením.

projekt 2022

Koncept založený na nenásilné gradaci hmoty k nároží přispěje k identifikaci místa. Hra říms pomáhá dům odhmotnit s respektem k lidskému měřítku a k návaznosti na sousední historické domy. Parter si pohrává s rozšířením ulice Za Papírnou směrem k centrálnímu parku. Podloubí přechází do komunitního dvora, vstupy jsou jasně identifikovatelné a chráněné. Dětská skupina má vlastní zelenou terasu. Mix modulárních bytů podporuje sociální inkluzi. Dopravní a skladovací koncept podporuje sdílenou dopravu.

ARCHITEKTURA A ROLE V KONTEXTU MĚSTA

Budoucí charakter řešené lokality v dnešním pražském brownfieldu určí soulad dochovaného torza fragmentární historické zástavby s novou podobou města, vystavěnou dle záměru územní studie Holešovice Bubny Zátory.

Nároží a výšky říms
Nárožní dům uzavře nezvyklý holešovický blok, smíšený ze současných i plánovaných objektů. Setkají se zde čtyřpodlažní fasády starých činžáků, dostavba historické papírny a osmipodlažní bloky s plochými střechami nové Holešovické čtvrti „B“. Naproti domu přes ulici, na kontaktu ulic Za Papírnou a Železničářů, vznikne specifický plácek, drobný pobytový prostor s několika stromy a mobiliářem, které obohatí lokální individualitu a stane se jedním z kontaktních a orientačních bodů parteru.
V tomto inspirativním, avšak složitém kontextu volíme koncept domu, založený na přehledné a nenásilné gradaci hmoty k nároží, a tudíž s logickou návazností na okolí. Orientace a snadná identifikaci místa v nově budovaném městském prostoru získá jasnou podporu. Ustupující horní podlaží, která by nároží nevhodně oslabila, nahrazujeme přechodem v decentní hru říms. Členění fasád proměnlivými výškami říms, které dělí fasády v souladu s historickým pojetím parter-tělo-koruna, pomáhá dům odhmotnit s respektem k lidskému měřítku a k návaznosti na sousední historické domy.

Podloubí a dvorek
Kratší stranu pobytového prostoru s několika stromy a mobiliářem před domem rozvíjíme hlouběji do domu v podobě podloubí, které posílí zapamatovatelnost místa. Hloubka podloubí si pohrává s plánovaným rozšířením ulice Za Papírnou směrem k centrálnímu parku. Severně se podloubí lomí v průchod do dvora, vstup do budovy a budoucí možný průchod vnitroblokem jsou tím jasně identifikovatelné a bezbariérově přístupné.
Odsazení skleněných výkladců kavárny na východní straně upozorňuje na průchod do dvora, dílčí části v budoucnu propojeného zeleného vnitrobloku. Chráněný průchod je také bezpečným vstupem do dětské skupiny. Využití společného dvorku jako komunitní zahrádky s příhodným závětřím a lavičkou u vstupu do domu zvyšuje kvalitu bydlení a posiluje sociální vazby v místě.
Nezastavěná plocha bude zařízena zahradně, předpokládáme zachování stávajícího stromu (případně jeho nahrazení kvalitnější dřevinou). Zahrada přímo navazuje na vstup do bytové části, což zvyšuje její přístupnost a společenskou atraktivitu. Kolem zahrady jsou umístěny podpůrné prostory (zahradní sklad, skladování a mytí kol, kočárkárna). Místnost pro ukládání odpadu je přístupná z ulice, je odvětraná nad střechu objektu, technologie vzduchotechniky je umístěna v nástavbě v 6.NP.

DISPOZICE A PROVOZNÍ ŘEŠENÍ

Parter, dětská skupina
Struktura jednotlivých prostor je přehledná, návaznosti jsou logické a bezbariérové vstupy jasně identifikovatelné. Parter pro obchod či služby je přístupný velkými prosklenými výkladci z prostranství ulice a podloubí a má vyšší konstrukční výšku 4,5 m.
Hlavní vstup do domu je z dvorku za chráněný průchodem, může však být propojen recepcí do ulice Železničářů.
Bezpečí dětské skupiny řeší vstup se šatnou a zázemím na úrovni ulice, přičemž hlavní pobytový prostor s kuchyňkou a zázemím dětí je v patře a je spojený s chráněnou střešní terasou umožňující výsadbu zeleně, orientovanou do dvora. Provoz dětské skupiny tím získává vlastní venkovní hernu bez nutnosti vyčlenit na dvoře hřiště s oplocením.

Univerzalita a adaptabilita bytů
Mix bytů ve struktuře jednotlivých podlaží od 2. NP přispívá k heterogenizaci prostředí a podporuje sociální inkluzi. Modulárnost bytů umožňuje vzájemné slučování a má schopnost reagovat na proměny potřeb obyvatel. Univerzální řešení posiluje připravenost jednotek k rozmanitému užívání lidmi odlišných generací a v odlišných životních situacích; každý byt lze v rozumné míře jednoduše přizpůsobit konkrétním nárokům jednotlivých skupin uživatelů.
Byty mají otevřené dispozice s plynulým napojením obytných místností na předsíně. U minimálních bytů do 20 m2 lze předpokládat častější střídání nájemníků, zatímco u bytů do 30 m2 budou nájmy dlouhodobější. Z toho vychází základ koncepce bytů, založený na univerzálním užívání, který umožní užívání všech bytů osobami na vozíku (otáčení 1.2 m) bez nutnosti stavebních úprav. Upravitelnost je možná u všech bytů z minimálních změn, a to na komfortně bezbariérové byty (otočení 1.5 m, bezbariérová kuchyně atp.).

Zádveří a letní pavlač
Prostorovou efektivitu a praktičnost zaručuje většině bytů přirozeně prosvětlené zádveří před vstupem, soukromé místo k odkládání věcí denní potřeby (kočárek, jízdní kolo apod.) přímo u bytu bez zbytečných cest do sklepních kójí v suterénu.

Prostředí tímto způsobem motivuje obyvatele k aktivní mobilitě nebo nabízí prostor k zřízení malé dílničky, umístění vlastní pračky apod. nebo sezení a vytváření kontaktu s prostorem pavlače.
Úspornou komunikační páteř obslouží jedno vertikální jádro s výtahem o rozměrech umožňujících pohodlné převážení jízdních kol a kočárků. Delší část chodby – letní pavlač – je zasklena velkými posuvnými okny, která lze v teplých měsících odsunout a ve spojení s odkládacím zádveřím bytů podpořit nejen čitelnou hierarchii míry soukromí, nýbrž vytvořit důležitý sdílený prostor s vysokým pobytovým a sociálním potenciálem, místo vhodné k pohodlnému sledování okolí a k sousedskému setkávání přes otevřená zádveří či sdílený balkon.
V suterénech jsou umístěny kóje pro byty do 20 m2 a pro skladování rozměrných předmětů převážených auty.

Sdílené prostory a sociální aspekt architektury
Na všech výškových úrovních se v domě vyskytují společné prostory rozličných měřítek, podporující příležitostný kontakt, setkávání a soudržnost obyvatel domu, usnadňující soužití osob různého sociálního statusu, věku apod.
Závětří a vstup do domu je lemován lavičkami (reminiscence společenského zápraží), vstupní hala s dlouhou čistící zónou, schránkami a místem k odložení těžkých tašek je dostatečně prostorná a vlídná k sousedskému zastavení apod. Společná kolárna a kočárkárna je umístěna v návaznosti na vstupní prostory a v zahradě je umístěna místnost pro skladování a mytí kol a zahradního náčiní.
V horních patrech, s vazbou na terasy a zelené střechy, jsou k podpoře sousedství a potkávání umístěny společné prostory – klubovna nebo tělocvična v 6. NP a prádelna v 7. NP (v malých bytech nepředpokládáme umístění praček, i když přítomnost zádveří u většiny bytů to nevylučuje).
Navržené řešení umožňuje různé typy pohodlného dopravního užívání včetně sdílení – sdílené auto ve společném stání, umístění stanice veřejných sdílených kol/koloběžek, společné i soukromé skladování různorodých prostředků osobní městské dopravy.
Všechny společné prostory jsou bezbariérově přístupné.

Skupinový byt
Byt pro vícedomácnostní bydlení se sedmi jednotkami je situován do 2. NP a je bezbariérový. Do bytů se vstupuje přes dispozičně chráněné zálivy ze společného obytného pokoje (akustická pohoda), což podporuje sdílení života komunity, vzájemnou sousedskou výpomoc a posiluje mezigenerační solidaritu (senioři, samotáři, studenti). Obytná místnost bude užívaná výlučně obyvateli bydlení této skupiny a v případě potřeby může jeden z bytů fungovat i jako asistenční. Sdílené bydlení je možné v případě potřeby změnit na kombinaci 1+KK a 3+KK zakreslenou ve vyšších podlažích.

Režim dopravy a podpora udržitelné mobility
Problémem dnešních měst je přehuštěná IAD a prostorové nároky na dopravu v klidu; z ročenek dopravy vydávaných Ministerstvem dopravy vyplývá, že osobní automobil je v průměru využíván pouze 24 minut denně (zdroj: Koncepce městské a aktivní mobility pro období 2021-2030).
V současnosti se přístup mění, ulici už nevnímáme jen jako dopravní koridor, ale jako jedno z nejživějších interaktivních míst ve městě. Vlídná a multifunkční atmosféra ulice je v zájmu všech uživatelů, zohledňuje ekonomickou životaschopnost obchodů, fyzický komfort obyvatel v okolí (snížení hladiny hluku a znečištění), bezpečnost dětí, které jdou do školy pěšky nebo si hrají na chodníku (dětská skupina), pohodlí starších osob nebo osob s omezenou mobilitou při pohybu ulicí a při jejím přecházení a pocit bezpečí.
Východiskem pro návrh je tedy pozitivní vztah k trendu udržitelné mobility a motivace prostředím k využívání alternativ k IAD (doprava nevhodná na krátké vzdálenosti) a k aktivní mobilitě (pěší, cyklistické), carsharingu, bikesharingu apod. Navržené prostředí podporuje pohodlnou dopravu kol a kočárků z chodníku až k bytům, uvolnění parteru a humanizaci uličního prostoru (minimalizace prostorových nároků na vjezd, výtah místo rampy). Uliční profil a předpokládaná intenzita dle ÚS Holešovice Bubny Zátory (max. intenzita generované dopravy za 24 hod = 624) umožňují umístění vrat autovýtahu ze suterénu do ulice Za Papírnou a předpokládáme i budoucí režim zóny 30.

Parkování
Výpočet parkovacích stání byl proveden metodou hrubých ploch dle metodiky PSP. Návrh parkovacích stání splňuje výpočtové kapacity s rezervou tří stání v suterénu a možností umístit nabíječky pro elektromobily. Rezervu je vhodné nabídnout k užívání zaměstnancům komerčních prostorů, např. pro zásobování dětské skupiny. Návštěvnická stání jsou umístěna podélně v ulici Železničářů, doplněna stromořadím, v souladu s návrhem územní studie.

TECHNICKÉ ŘEŠENÍ, HOSPODÁRNOST A VYUŽITÍ OBNOVITELNÝCH ZDROJŮ

Stavební a technický koncept budovy dbá na zvýšenou pozornost pro důstojné stárnutí domu, úsporu v nákladech na údržbu a odolnost k opotřebení.

Konstrukce a materiály
Jednoduchost konstrukčního řešení je založena na železobetonovém skeletu s železobetonovými stropy a vyzdívkami z vápenopískových tvárnic a s důrazem na komfortní akustické řešení mezibytových konstrukcí. Navržená konstrukce není závazná, stavbu lze realizovat z jakéhokoli konstrukčního systému, který se v dalších fázích projektu prokáže jako nejekonomičtější a nejekologičtější.
Obálka budovy předpokládá provedení tepelných izolací dle standardů pro pasivní domy, okna pasivní s trojskly, střechy se skladbou umožňující ozelenění a akumulaci srážkové vody.
Povrchy vychází z tradice pražských domů – omítka, natírané tyčkové zábradlí, sokl z odolného materiálu se snadnou údržbou apod. Vnitřní povrchy stěn a stropů omítané.
V souvrství podlah je počítáno s teplovodním podlahovým vytápěním, venkovní pochozí dlažby na konstrukcích budou z žulové pražské mozaiky a na terénu budou travnaté plochy se zahradní úpravou (záhony, šlapáky či mlatové cesty).

Obálka, stínění, větrání
Obálka a okna s trojskly v pasivním standardu zajistí dostatečné východisko pro minimální spotřebu energie pro vytápění. Veškerá níže popsaná technologická zlepšení usilují o co největší univerzálnost; pokud některá z technologií nebude z finančních důvodů realizována, zásadní vlastnosti návrhu nebudou negativně ovlivněny.
Pro zajištění tepelné pohody v letních měsících navrhujeme vnější stínění před prosklenými částmi fasády (rolety ap.). Návrh doporučuje užití rekuperace pro všechny prostory včetně komerčních. Rekuperační jednotky budou umístěny v nástavbě v 6.NP pro zajištění minimálních ztrát na vstupním rozvodu. Rozvod bude rozdělen do okruhů dle typu užívání. Rekuperace pro byty není nutným předpokladem návrhu, ale považujeme ji za významnou výhodu nejen z hlediska energetických úspor, ale hlavně z hygienických důvodů. Pokud nebude rekuperace realizována, je možno zřídit aktivní větrání pro zajištění křížového provětrání odvedeného podhledy na fasádu pavlače. Aktivní chlazení nenavrhujeme.

Solární panely
Plochá střecha nad 7.NP (234 m2) je v souladu se soutěžním zadáním navržena ve skladbě pro střešní zeleň. Tato plocha je však vhodná pro instalaci solárních fotovoltaických panelů či jiných budoucích aktivních prvků systému energetických úspor. Solární panely lze mj. využívat např. pro pohon rekuperace či letní dochlazování rekuperovaného vzduchu, a přispívat s jejich pomocí přímo ke zlepšení vnitřního klimatu budovy. Technické zázemí pro solární panely může být umístěno v nástavbě v 6.NP nebo v suterénu budovy.

Střešní zeleň
Všechny ploché střechy mají výšku konstrukční skladby dostatečnou pro umístění extenzivní i intenzivní střešní zeleně. Na střechách 6.NP a 5.NP předpokládáme intenzivní zeleň, kterou lze zalévat šedou vodou. Část těchto ploch dále využíváme jako společné nebo soukromé pobytové terasy. Na střeše 7.NP předpokládáme extenzivní zeleň bez zalévání, nebo vhodněji solární panely, případně obojí. Skladbu pro intenzivní zeleň má i terasa dětské skupiny ve 2.NP.

Dešťová voda
Veškerá dešťová voda ze všech plochých střech objektu je zachycována v retenčních nádržích. Celková kapacita navržených nádrží je cca 26 m3, což představuje optimální objem pro zadržování a úplné využívání vody, s dostatečnou rezervou pro přívalové deště. Výpočtové množství dešťové vody by dokázalo obsloužit cca 20 osob, pro využití v bytech je tedy kapacita nedostatečná. Navrhujeme využívat dešťovou vodu pro zalévání střešní zeleně a pro splachování wc v komerčních prostorách.
Nádrže na vodu jsou umístěny v 7.NP, 6.NP a 2.NP, aby bylo možno vodu využívat gravitačním spádem, bez nutnosti čerpání.
V zahradě vnitrobloku (1.NP) navrhujeme zřídit podzemní jímku povrchových dešťových vod s přepadem do vsakovacích jam, zachycenou vodu používat k zalévání.

Bio odpady, kompost
Nádoby na ukládání bio odpadů lze umístit v místnosti pro odpady (č. 7). V případě využívání zahrady vnitrobloku jako komunitní zahrady doporučujeme v severozápadním rohu pozemku zřídit kompost.


malá štěpánská

malá štěpánská

úprava a rozšíření půdní vestavby, Praha Nové Město

realizace 2022

Úprava podkrovního bytu z roku 1997 mění zastaralé řešení interiéru. Štítovou stěnu nárožního domu s eklektickým průčelím ze sklonku 19. století změna v podkroví obohacuje o výrazné okno, prvek soudobého výrazu, citlivě zasazený do historických souvislostí.

Členitý prostor interiéru je zjednodušen a prosvětlen. Rozšíření s oknem orientovaným na Petřínský vrch a panorama Hradčan nahradilo nefunkční lodžii z roku 1997. Začlenění okna do prostoru střechy je nekonfliktní, zceluje architektonicky neuspořádaný prostor štítové zdi a oživuje střešní krajinu Nového Města pražského.

pod habrovou

pod habrovou

spolupráce na řešení úprav funkcionalistické vily v památkové zóně Barrandov
realizace 2022

Když v roce 1927 V. Havel získal pozemky v lokalitě Habrová, staly se zdejší skály, lomy a úvoz od hlubočepské silnice základní scenérií nového vilového souboru Barrandov. V první etapě výstavby podle urbanistického plánu M. Urbana bylo k dispozici 21 pozemků nad Barrandovskou skálou a 17 pozemků Pod Habrovou, kde sice nebyl realizován plán J. Fragnera a J. Krejcara na výstavbu kolonie typových funkcionalistických domů, avšak nové domy ovlivnila jednotná východiska založená na funkcionalistickém tvarosloví a kompozičních principech.

Samostatně stojící vila č.p. 182 s garážemi mimo půdorys objektu je zasazená do svažitého terénu a byla postavená ve 30. letech podle plánů V. Hlaváčka a V. Müllera.

Hmota domu je složená ze vzájemně prostupujících se kubusů navázaných na schodišťový rizalit, který celý objekt převyšuje. Při rekonstrukci bylo v souladu s dobovým konceptem doplněno mírné rozšíření hmoty do prostoru nevyužívané střešní terasy a rozšíření garáže jako součásti původního mohutného soklu s venkovním schodištěm, vyrovnávajícím terénní nerovnosti. Prostor garáže je propojen s dipozicí na úrovni 1. PP, dispozice bytů v 1. a 2. NP byly zachovány. Původní prvky a materiály byly repasovány, fasády byly obnoveny dle sond původního stavu.

rd písnice

rd písnice

úprava venkovského stavení v Praze Písnici

projekt 2021

Přestavba venkovského stavení v historickém jádru Písnice přidává ke stávajícímu bytu druhý, podkrovní s vlastním vstupem. Nový vstup a zázemí podkrovního bytu zastřešuje úzká přístavba, charakterem blízká doplňkům venkovských hospodářských staveb či kůlen, jež obohacuje osnovu staveb stoupajících po svahu podél ulice Těšovická.

Vnitřní prostor přístavby je otevřený, založený na podélné ose vstup – zadní zahrada – podkrovní byt. Technické a skladové zázemí v přízemí je ukryto ve snížené části pod svahem. Minimální odstup od hranice pozemků je typickým rysem původní urbanistické struktury. Koupelna s WC jsou nepřímo osvětlené vnitřními okny vedoucími na schodiště. Z kuchyně jsou výhledy na náves před dům i na vstup do zadní zahrady.

spolkový dům velešín

spolkový dům velešín

soutěžní návrh spolkového domu v uliční frontě na horní hraně náměstí J. V. Kamarýta

3. cena v architektonické soutěži, projekt 2021

URBANISMUS A ARCHITEKTURA
Náměstí lemuje kompaktní zástavba souvislých front dvoupodlažních domů. Výšky říms a hřebenů se proměňují a výtvarně vyjadřují spíše společenství všech než individualitu některých. Historický charakter nebo alespoň měřítko mají prakticky všechny někdejší i současné stavební zásahy kolem náměstí, vyjma stávajícího objektu Podkovy a bývalého Domu služeb.
Nový spolkový dům ctí sjednocující architektonické téma náměstí, pro které je určující průběžná hřebenová linie a uzavřenost. Svůj společenský význam stavba vyjadřuje jemnou modulací linií přítomných v území, podtrhuje funkci prestižního místa náměstí jako vrcholu městského prostoru. Hmota hlavního sálu, orientovaná do dvora, reaguje na podobu hospodářských přístaveb. Sál je však o řád větší než jakákoli historická funkce v řešeném prostoru, a svou velikost neskrývá. Směrem k autobusovému nádraží naznačuje svou přítomnost rozsvícenými okny pod hřebenem střechy.

PRŮCHOD
Obraz náměstí formují nárožní uliční vstupy, ke kterým se přidávají úzké domovní průjezdy.
Nový průchod do dvora spolkového domu a dále ke kinu je parafrází k zachovaným průjezdům sousedních domů. Kompozičním principem tohoto průchodu je vizuální vazba k dominantě kostela pro příchozí od kina a vnímání kontaktu mezi náměstím a spolkovým dvorem je umocněno úzce sevřeným průzorem. Průchod se prolíná skrz prosklenou stěnu s lobby a restaurací v přízemí, které lze v letních měsících plně otevřít do obklopujícího venkovního prostoru.

AKTIVNÍ KOMUNITA
Srdcem domu jsou plesy či sportovní aktivity a jejich význam architektura zesiluje kontaktem s okolím. Malá města představují spojení výhod venkova a městského způsobu života; anonymita a neosobnost zde není v míře, kterou potkáváme u velkých měst. Celé přízemí – restaurace, lobby, malý sál – se otvírá do náměstí, průchodu a dvora. Vyzdvihnutí hlavního sálu do patra skýtá reprezentativní nástup (plesy), poskytuje určité soukromí (sport) a nabízí dálkové výhledy.

DVŮR A ZAHRADA
Dvůr mezi kinem a spolkovým domem má potenciál kulturní plochy celoměstského významu. Altán s pódiem a návaznost na malý sál v přízemí umožní snadné pořádání sezónních akcí typu městské slavnosti, karneval, jarmark. Směrem ke kinu přechází dlážděný venkovní parket ve stoupající travnatou plochu, vhodnou jako hlediště pro venkovní akce spolkového domu i kina.

PROVOZ
Hlavní vstup do budovy je orientován do ústí průchodu ve dvoře, do restaurace lze vstoupit i přímo z náměstí. Zásobování je zajištěno ze dvora (vjezd od kina lze použít pouze pro zásobování).
Objekt je členěn na jednotlivé požární úseky, bezpečnou evakuaci osob ze všech míst budovy zajišťuje napojení na chráněnou únikovou cestu do volného prostranství. Z velkého sálu je bezpečný únik veden chráněnou únikovou cestou do prostranství dvora a druhý únik je nechráněný skrz prostor lobby.

SUTERÉN
Konstrukce stávajícího suterénu budou odstraněny, neboť se nezdá technicky optimální využít základy pro jakoukoli novou stavbu. Jáma, která takto vznikne, bude využita pro nový technický suterén, ve kterém budou situovány místnosti, které si vyžádá univerzální provoz sálu (např. dílny, sklady divadelních rekvizit, skládacích konstrukcí vyvýšených hledišť apod.).

KONSTRUKCE, TECHNOLOGIE
Nosný systém stavby je kombinací železobetonových prvků (sloupy a pilíře, výtahová šachta, stropy) a vyzdívaných zdí (vápenopískové bloky). Trámová konstrukce stropu pod konzolovanou částí patra je přiznaná v interiéru přízemí. Velký sál v patře je řešen jako prostorová ocelová nadstavba, na místě svařena z prefabrikovaných ocelových prvků. Konstrukce sedlové střechy do náměstí je tvořena dřevěnou krokvovou soustavou. Střešní plášť je z pohledové PVC fólie v barvě fasád. Stěny budou omítané, s reprezentativními detaily (šambrány, sloupky) z pohledového probarveného betonu.
Tepelná obálka konstrukcí splňuje současný pasivní standard podpořený inteligentní regulací, což spolu s kompaktním dispozičním a tvarovým řešením stavby zaručuje minimální provozní náklady. Vzduchotechnika zajistí ve vnitřních prostorech řízené rovnotlaké větrání s rekuperací, rekuperační jednotky budou umístěny v technické místnosti v podkroví.


mělník čp 244

mělník č.p. 244

interiér městského domu

Interiér je navržen pro t. č. probíhající rekonstrukci domu č.p. 244 v památkové zóně města. Historická stavba malebného maloměstského měřítka je přestavována dle návrhu Ing. arch. E. Ježdíkové z roku 2017. Hmota budovy viditelná z ulice je původní, fasádám je navrácen klasicistní, přísně symetrický výraz. Přístavba do dvora má soudobý architektonický výraz, propisující účelnost vnitřních prostor do fasád. Koncepce interiéru je vystavěna na dialogu historických a novodobých přístupů k architektonické tvorbě.

1. np
V přízemí a ve sklepení je čitelnost původního prostoru a konstrukcí nejvyšší. Oprašujeme schodiště, zachováváme vstup a obložkové dveře velkorysých rozměrů podporujíc klasicistní charakter vstupního prostoru. Od sklepa po 3. np postupně ubývá původního a převládá nové. Dispozice je tradiční chodbová, proporce odráží původní a každá z hlavních místností má nově výrazně výtvarně pojednanou jednu stěnu. Tělocvična coby součást přístavby se vymezuje proti původnímu domu – podobně jako obývací pokoj o patro výš přiznává soudobý původ
a neskrývá své konstrukce.

2. np
Po výstupu z historického schodiště získává převahu nové, prostřednictvím obývacího pokoje expandujícího do kuchyně. A zatímco schodiště do přízemí se zachovanými historickými prvky spojuje stále ještě „staré se starým“ – otevřená chodbička vedle schodiště je odrazem původní dispozice – schodiště do podkroví je už spojnicí „nového s novým“. Portál schodiště do podkroví vstupujícího upozorňuje, že opouští společný rodinný prostor a přechází do hravého dětského světa.

3. np
Podkrovní prostor je celý pojat novodobě, historické tvary ani prvky již neužívá a dílem upouští od racionality světa dospělých. Vchod skříní lze chápat jako příchod do Narnie, země fiktivního světa. Za zavřenými dveřmi běží čas jinak, nelineárně. Závěr pokoje se zvedá jako hora a přechází v lezeckou stěnu.

Projekt 2020



jana masaryka

jana masaryka

rekonstrukce bytu, Praha Vinohrady

Před polovinou 20. století vnesl architekt František Troníček do jednoho z bytů v honosném Vinohradském viladomu kus specifické poetiky, někde mezi funkcionalismem a art decem. Na ploše tohoto bytu spojujeme klasicizující konec 19. století, Troníčkovu modernu a současnost.

Zakázkový mobiliář je repasován a doplněn současnými prvky, které v souladu s původním rukopisem nešetří materiály v reprezentativních místnostech a v zázemí splývají v jednotné bílé.

Realizace 2020

kozojedy

kozojedy

rekreační chata v terénním zářezu potoka Šembera

Sevřené údolí, osada chat různorodých tvarů a velikostí, ohraničeno pásem lesa, poli a loukami. Nová dřevostavba 5,6 x 9,1 m se rodí na místě původní chaty, vyrůstá z betonového soklu, vzhled vychází z urbánního charakteru osady.

Zahuštění vnitřního prostoru generuje charakteristický rys dispozice – raumplán, prostory s různou výškou podlah a proměnlivou světlou výškou, odpovídající užití. Přízemí o dvou ložnicích slouží primárně pro hosty. Prostřední podlaží tvoří hlavní obytný prostor, dělený nábytkem. V horním podlaží jsou ložnice propojené se střešní terasou.

Dešťová voda bude zachycována v nádrži pod terénem a zpětně využívána v objektu. Vytápění krbem bude kombinované s elektrickým přímotopným ohřevem. Na střeše předpokládáme umístění fotovoltaických panelů pro hybridní solární elektrárnu.

projekt 2019

kozojedy-1kozojedy-2kozojedy-3kozojedy-4

 

na pomezí

na pomezí

spojení bytů, Praha Košíře

Propojením dvou bytů vzniká rozsáhlá šestipokojová dispozice. V jejím středu je soustředěno zázemí a vstup, po stranách jsou umístěny obytné místnosti. Trojtraktová dispozice je navržena tak, aby bylo možné byty opětovně rozdělit s minimálním stavebním zásahem.

Architektonické řešení zdůrazňuje provázanost místností: hlavní pokoje je možno propojit, nábytek v ložnici s pracovnou je variancí na nábytek v obývacím pokoji s kuchyní, stejné materiály a měřítko se uplatňují v různých částech bytu, bytem prostupuje měkké přirozené světlo.

Práce s pastelovou barevností v zázemí dětských pokojů navazuje na ideové východisko úpravy jednoho z bytů z roku 2010 a poskytuje prostoru bez denního osvětlení hravou přívětivost.

realizace 2010, 2018

pomezi-1

pomezi-2

pomezi-3

pomezi-4

pomezi-5

pomezi-6

pomezi-72

 

šatovka

šatovka

soutěžní návrh adaptace usedlosti v Šáreckém údolí na seniorské centrum, Praha Dejvice

Původní využití usedlostí v Šáreckém údolí, spojené s rolnickým hospodářstvím, dnes již nejde obnovit. Ztracený význam Šatovky posilující místo a komunitu obnovit lze. Stará usedlost vyjadřuje historickou kontinuitu, vznikající dialog historie a současnosti je mostem k dialogu mezi generacemi i mezi sousedy. Morfologii svahu kopíruje škála míst k podpoře setkávání, bezbariérové trasy využívají dochované viniční terasy. Usedlost se otvírá k dlážděným prostranstvím, v kavárně se setkávají aktéři: obyvatelé, děti, turisté a návštěvníci. Bydlení seniorů je umístěno na zvýšené terénní plošině, zajišťující soukromí. Dětské hřiště v aktivní části zahrady podporuje kontakt mezi generacemi.
Architektura vystavěná na jednoduchém půdorysu obklopuje dvůr, kvalitu bydlení zlepšují možnosti komunikace a aktivní účasti na společenském životě. Podpora sousedských vazeb neomezuje nabídku dostatečného individuálního soukromí, diverzita bezbariérových bytů
reaguje na životní situace. Byty obklopují krytá pobytová místa s možností posezení venku za každého počasí. Každý byt je plně vybavený, kuchyňky jsou orientované do pavlačí, některé z bytů podporují spoluužívání. V nároží jsou prostory pro společenské aktivity bydlících.
Současný vzhled Šatovky navrhujeme revitalizovat do původní podoby, uvnitř usilujeme o zachování podstatného: klenby, původní proporce místností umožňují vícevrstvé užívání prostoru. Nové využití požaduje integraci výtahu.

projekt 2018
spolupráce Raumleipzig Architekten
2. cena v  architektonické soutěži

2019-satovka-02019-satovka-12019-satovka-22019-satovka-3

 

ateliér za strahovem

ateliér za strahovem

Tři malé místnosti v úrovni chodníku měníme v propojený prostor, s možností oddělení dveřmi skrytými v nábytku. Vzniká místo pro sólovou kancelářskou práci a občasné přespání, vizuál je jednoduchý, studentsky inspirativní. Frézované dřevo přispívá k příjemné akustice a charakteru blízko malému kinosálu.

realizace 2018

nyc-atelier-1nyc-atelier-2

 

byt za strahovem

byt za strahovem

Malý byt je navržen prostě, s radostí. Hlavní prostor dělí namísto dveří výrazné bloky kuchyně, knihovny a skříní v předsíni, společně definující výtvarný leitmotiv bytu. Ložnice je rozdělena šatní skříní na místo pro spaní a komorní pracovnu s pianinem.

realizace 2018

nyc-byt-1nyc-byt-2nyc-byt-3nyc-byt-4

 

kostelní – biskupská

kostelní – biskupská

soutěžní návrh novostavby bytového domu v Ostravě

URBANISTICKÉ SOUVISLOSTI
Jádrem architektonického výrazu nové budovy musí být průčelí do 28. října a Kostelní,
cílem zdůraznění pěšího propojení mezi Masarykovým náměstím a řekou. Charakter místa je hraniční: osciluje mezi historickým jádrem a strohou velikostí současné architektury. Oba charaktery se musí na navrženém objektu setkat.

CHARAKTER MÍSTA
Krátká Biskupská ulice má větší měřítko a jiný charakter, než je v architektonicky a historicky pestrém okolí obvyklé. Velké strohé hmoty uzavírají Sokolskou třídu a Biskupské ulici předurčují úlohu dopravní spojnice, která z hlediska městského parteru a chodců nedosahuje potenciálu ulic 28. října a Kostelní. Jádrem architektonického výrazu navržené budovy proto musejí být průčelí do 28. října a Kostelní a jejich hlavním cílem zdůraznění pěšího propojení mezi Masarykovým náměstím a řekou. Charakter místa je hraniční: osciluje mezi malebným historickým jádrem a strohou velikostí současné architektury. Oba charaktery musí nový dům spojit.

SOUČÁST BLOKU
Na rozdíl od budovy Městské brány je řešený pozemek součástí bloku. Blok má silně proměnlivou výšku hlavní římsy i tvar uliční čáry, což je v okolí obvyklé a do značné míry to utváří poetiku historického centra Moravské Ostravy.

ORIENTACE A OSLUNĚNÍ
Hlavní uliční fasáda do Biskupské ulice je pro severovýchodní orientaci neoslunitelná. Tradiční orientace pobytových místností bytů do ulice není vhodná, naopak je vítaná orientace jižním směrem ke kostelu sv. Václava, a to nejen z důvodu oslunění, ale též pro kontakt s pravým geniem loci historického jádra i pro eliminaci hluku z dopravy.

NÁROŽÍ
Na křížení ulic 28. října a Biskupské se k sobě obracejí tři stávající domy, každý zcela jiného stylu. Úzký cíp řešeného pozemku a požadavek na zachování vstupního objektu kolektoru předurčují zbývající architektuře odlišnost od ostatních domů v křižovatce. Nové nároží vyžaduje odvážný, avšak kultivovaně klidný výraz.

ARCHITEKTONICKÝ VÝRAZ
Slunce tvaruje dům a znovuvytvořenému bloku dodává pestrost odpovídající geniu loci. Severovýchodní fasáda hmotově odpovídá velkému měřítku Biskupské ulice. Nároží do ulice 28. října je reminiscencí fasády do Kostelní ulice.

SLUNCE TVARUJE DŮM
Ze studie oslunění vyplývá, že okna obytných místností bytů lze umístit do Kostelní ulice a do vnitrobloku od výšky cca 7 m nad terénem. Do vnitrobloku umísťujeme parkování v zakladačích, nad ně zahradu s atraktivním klidovým charakterem. Šikmé vykrojení v přízemí budovy Moravské brány, coby odkaz na někdejší Kostelní bránu, dostává na novém domě výtvarně hodnotný protějšek ve schodovitém vykrojení horních podlaží do Kostelní ulice. Tím zlepšujeme proslunění bytů.

FASÁDY
Fasády do Kostelní odrážejí potřeby oslunění, uzpůsobují měřítko uliční frontě a vytváří místně typickou gradaci směrem k nároží Kostelní a Biskupské. Fasáda do Biskupské je tvarována lapidárně v souladu se současnou zástavbou. Domy na nároží k ulici 28. října jsou stylově nejednotné, doplněné nároží je jemnou reminiscencí ke schodovitému vykrojení na fasádě do Kostelní ulice. Vzniklá souvislost zdůrazňuje význam ulic 28. října a Kostelní a pocitově zkracují fasádu Biskupské.
Koncept reprezentativního městského domu, který spojuje historickou a současnou architekturu města, naplňuje forma osové mřížky pravidelně rozmístěných oken. Proporce mřížky do Biskupské odpovídá sousedním domům současnosti, mřížka do Kostelní se zužuje v souladu s drobnějším měřítkem historických budov. V nižších podlažích s obchody a kancelářemi se uplatňuje vysoký řád. Přísnost mřížky místy rozvolňujeme výtvarnými zásahy s odkazem na charakteristicky malebnou rozmanitost v okolí, vycházejíc z potřeb oslunění, vnitřní funkce, nebo vnějších souvislostí. Světlá omítka, použitá i na všech ostatních budovách v bloku, sjednocuje hmotově roztříštěný blok.

PROPOJENÍ VNITROBLOKY
Po straně vstupního objektu kolektoru je vynechán prostor pro parkování obsluhy a tímto místem může být i zprůchodněn vnitroblok na pozemku 27/1 mezi ulicemi Biskupská a Zeyerova, například jako prostředek zahuštění sítě pěších tras skrz poloveřejné zahrady a dvory v městském jádru. Parcelu 27/1 je možné zpřístupnit i pro auta vraty z garáží navrhovaného domu.

PARTER
Z rohu vedoucí zapuštěné přízemí a výškové odskakování hmoty graduje rozšířením chodníku ve vstupní lobby s otevřeným schodištěm. Návaznost na pěší zónu 28. října je zřejmá, trasa s novými obchody je prodloužena do Biskupské a nekompromisní ukončení pěší zóny na hranici křižovatky s novým domem mizí.

DISPOZICE
Ze středu je dům obsloužen jediným schodišťovým vláknem, podporujícím komunitní aspekt budovy. Jedním z typických urbanistických prvků v okolí jsou otevřené proluky a průhledy do vnitrobloků. Výtvarně otevřené komunikační vlákno od vstupu po zahradu je jejich připomínkou.

JEDNO OTEVŘENÉ JÁDRO
Celý dům je obsloužen jediným schodišťovým jádrem ve středu dispozice. Otevřený prostor se schodištěm mezi vstupem z Biskupské a zahradou vnitrobloku je připomínkou typického urbanistického prvku z okolí – otevřených proluk a průhledů do vnitrobloků. V horních podlažích jsou byty zpřístupněny z otevřené pavlače. Byty jsou oboustranně orientované s možností přímého provětrání. Rodinné byty v jižním cípu jsou přístupné lávkami vedoucími zahradou. Schodiště k bytům v horních podlažích je z požárních a bezpečnostních důvodů chráněné, únikový požární prostor je na střeše garáží.

OBCHODY
Pronajímatelné obchody v přízemí oživují všechny uliční fasády a jejich velikosti i standard zázemí lze upravovat. Každý prostor má krom základní úrovně ve výši chodníku i atraktivní zvýšené podlaží obchodního mezaninu.

KANCELÁŘE
Administrativní prostory jsou navrženy klasickou formou, dělenou po jednotlivých kancelářích, a také jako coworkingový pracovní prostor, který odpovídá dnešnímu trendu podpory společensky prospěšného podnikání. Administrativní prostor má ve vnitrobloku svou vlastní zahradu.

BYTY
Program jedno- až třípokojových bytů je dispozičně rozveden do bohatší škály od rodinné po individuální formu, s podporou blízkosti sousedského bydlení. Klademe důraz na komunitní aspekt budovy, podporující budování sousedského společenství, kde má každá domácnost krom svého bytu možnost aktivního podílu na chodu komunity – komunitní zahrada, otevřené pavlače.

KONSTRUKČNÍ, TECHNICKÉ A ENERGETICKÉ ŘEŠENÍ
Nosná konstrukce objektu je monolitická železobetonová s vyzdívanými fasádami, zateplenými kontaktní tepelnou izolací s omítkou ve standardu pasivní budovy. Objekt je nepodsklepený s výjimkou jam pro parkovací zakladače a prostor mezi nimi je využit pro technické a skladové zázemí. Instalace systému řízeného větrání s rekuperací může přinést úspory ve vytápění a zlepší kvalitu vnitřního ovzduší v zimních či smogově problematických obdobích. Další technologická opatření pro zlepšení ekologických vlastností budovy budou předmětem optimalizace návrhu v další fázi projektu. Některé aktivní prvky – solární panely, budoucí technologie atd. – lze doplnit i po dokončení stavby, přičemž je pro ně připraven dostatečný prostor v technickém prostoru mezi jámami pro zakladače.

projekt 2018

ostrava-1ostrava-2

 

rd nenačovice

rd nenačovice

novostavba venkovského stavení

Nenačovice jsou typickou středočeskou vsí, jež je zasazena do malebné krajinné scenérie údolí malé říčky. Původní, oku lahodící venkovskou zástavbu přívětivých forem a měřítek poškodila doba kolektivizace a neřízený optimismus porevoluční výstavby různobarevných rodinných domů všemožných forem.

V blízkosti jádra obce, na parcele vymezené pro novou rodinnou výstavbu, rehabilitujeme původní formu venkovského stavení soudobým architektonickým jazykem. Kompozice domu se rodí z kombinace sedlové, rovné a pultové střechy nad převýšeným prostorem a je soudobou parafrázi venkovského stavení se sedlovou střechou, obklopeného hospodářskými přístavbami.

Rytmus interiéru předurčuje svébytné tvarování prostor, hra průhledů a propojení mezi podlažími. Rozlehlost obývacího pokoje drobí prostorově-dispoziční plán – jídelna, krbové sezení, herna dětí, pracovna. Dětské pokoje jsou rovnocenné, podhled sleduje tvar sedlové střechy a tvoří „dětský svět domečku v domě“. Hlavní ložnici spojuje soukromá střešní terasa s hernou. Převažují jižní výhledy do údolí říčky Loděnice, lemované kopci PP Povodí Kačáku a na historické jádro obce. Zapuštěné terasy chrání před letním sluncem.

Utilitární chaos, který se v průběhu 20. století stal poznávacím znakem české zahrady, se na pozemku kultivovaně uplatňuje formou volně rozmístěných dřevěných zahradních domků.

projekt 2018

nenacovice-1nenacovice-2nenacovice-3nenacovice-4nenacovice-5nenacovice-6

 

martinská

martinská

interiér mezaninu a společných prostor domu

Zadání rekonstrukce vybraných prostor novobarokního domu na Starém Městě pražském znělo přiblížit se původnímu výrazu při současných požadavcích na komfort užívání. Mezanin a prostor domovní chodby se schodištěm jsme vyčistili od  architektonických nánosů z posledních desetiletí, oprášili jsme dochované materiály, řemeslné detaily a s pokorou v nezbytné míře doplnili nové.

realizace 2018

martinska-1martinska-2martinska-3martinska-4martinska-5martinska-6amartinska-7martinska-8

podolské schody

podolské schody

skupina bytových domů, Praha Podolí

sink-1-1610

Soubor bytových domů se 44 byty o velikostech od 1+kk do 5+kk ukončuje uliční frontu ve svahu pod Vyšehradem. Architektura založená na kompozici přesahujících a ustupujících hmot je u pražských bytových domů aktuální od 30. let 20. století dodnes. Je tak možné vytvořit výrazný objekt se současným tvaroslovím, který nenaruší historickou zástavbu. Kompozice fasád užívá horizontálních i vertikálních pásových oken, proměnlivých výšek parapetů i nadpraží oken.

realizace 2017
spolupráce Atelier Šesták

supervize za Crestyl Chmelař architekti

1. cena odborné poroty pro region Praha 4 v soutěži Realitní projekt roku 2015

sink-2

sink-3sink-4sink-5sink-6sink-7sink-8

 

 

 

kc říčany

kc říčany

soutěžní návrh komunitního centra v Říčanech

1610_ricany-first1610_ricany-last

KOMUNITNÍ CENTRUM

KC je založené na inkluzi a solidaritě, je místem setkávání a odbourávání předsudků. Neskrývá se za zdmi, jako první vykročí za kolemjdoucím. Synergie domu s parkem zrodí lokální magnet: prostředí aktivit a zájmů. Z kavárny se vchází do všech místností. Do kavárny je vidět ze všech okolních cest, je z ní průhled do všech stran. Návštěvník kavárny je součástí dění v domě. Střešní parking je univerzální parkový prostor, představuje levnější a udržitelnou alternativou k podzemním garážím.

NÍZKOPRAHOVOST

Komunitní centrum je zrcadlem občanské společnosti. Je založené na inkluzi všech, vzájemné solidaritě, je místem setkávání a odbourávání předsudků. Nabízené činnosti se nesmí skrývat za zdmi a zavřenými dveřmi budovy. Budova musí jako první vykročit nabídkou za kolemjdoucími, tedy svou otevřeností podpořit tolik potřebný nízkoprahový charakter. Jedině tak se může stát vlídným veřejným prostorem, který se prolne s životem města a stane se součástí parku, do kterého je zasazen.

DŮM VE MĚSTĚ

Komenského náměstí je lokalitou vícepodlažních budov uprostřed vilové čtvrti, postrádá zažité atributy náměstí. Pozemek s lokalitou hraničí, je obklopen domy bez veřejného parteru; je křižovatkou pěších tras. Hodnotou je park. Synergie domu s parkem zrodí lokální magnet: prostředí koncentrace aktivit a zájmů. Dům je součástí parku, park přebírá některé funkce domu.

DŮM V PARKU

Komunitní centrum je součástí vilové zástavby, do níž je pozemek vklíněn: nízkopodlažní budova je obklopená vzrostlou zelení. Cípy pozemku charakterizují odlišné aktivity: dětské a fitness prvky na západě, dlážděná společenská „agora“ kolem habru a venkovní kuželník zasazený do severního hájku. Všechny směry pěších komunikací jsou zachovány, umožňují volbu preferované trasy a ze všech stran zvou k návštěvě komunitního centra. Každá trasa obcházející dům představuje jinou tvář fungování komunitního centra a z každé trasy lze vstoupit do srdce objektu – kavárny.

DŮM NAD PARKEM

Střešní parking je koncipován jako zpevněný parkový prostor, vyvýšený mezi koruny stromů, univerzálně určený jak k parkování, tak ke sportovním či kulturním aktivitám. Představuje levnější a udržitelnou alternativou k podzemním garážím, zdůrazňuje sociální charakter centra, zaměření na kolemjdoucí – na člověka, nikoli na auta. Parkování je ohraničené plotem z popínavé zeleně a přístupné jednosměrnou vyhřívanou rampou.

KAVÁRNA

Nízkoprahovost centra posiluje myšlenka kavárny jako ústředního prostoru domu, jádra všeho dění, ze kterého se vchází do všech místností. Do kavárny je vidět ze všech okolních ulic a parkových cest, stejně jako je z kavárny průhled do všech stran. Každý návštěvník kavárny se stává součástí dění v domě. Neformální setkání s terapeutem se může stát zlomem terapie. Může vzniknout synergie mezi jednotlivými spolky a nadacemi. Venkovní sezení je rozprostřeno kolem budovy, v zálivech před terapiemi a v salonku si mohou návštěvníci v soukromí povídat.

TRANSPARENCE A FLEXIBILITA

Otevřenost není nucená, pomocí závěsů a žaluzií je možné pro určité situace požadované soukromí vytvořit. Koncept rozmístění funkcí kolem kavárny je založen na odstupňování potřebné míry intimity. Zvědavost napomáhá odbourávání předsudků a zvyšuje zájem o sociální aktivity.  Proto je sál, jako vizitka centra, koncipován dle dnešních trendů v navrhování komunitních center, je transparentní s možností otevření do stran. Letní program tak bude přitahovat každého kolemjdoucího. Klubovny jsou vsazené mezi kavárnu a západní část parku s dětskými prvky, lze je otevřít do parku či do kavárny podle zaměření právě probíhající aktivity. Místnosti skupinových terapií jsou orientovány do klidnější východní části parku a od kavárny jsou částečně odděleny vestavným nábytkem. Díky otevření do soukromé předzahrádky mohou terapie probíhat v nerušeném venkovním prostoru, jde o paralelu k převažujícímu charakteru okolní zástavby rodinných domů a zahrad. Terapie pro jednotlivce jsou v nejzazší části domu, v klidném zálivu. Pracovny terapeutů v patře umožňují klidnou a nerušenou práci, otevření do kavárny podél východní strany pracoven zprostředkuje vizuální kontakt s kavárnou a určitou možnost kontroly dění.

VIDĚT A BÝT VIDĚN

Všechny veřejné funkce jsou umístěny v přízemí. Centrální kavárna umožňuje navrhnout dům bez chodeb a orientačních systémů, přehledný každému návštěvníkovi. Nepravidelný půdorysný tvar vnáší emoci a vytváří různorodá zákoutí, využitelná pro poloveřejné terapeutické schůzky s různou mírou soukromí, nabízí průhledy do terapií, prostorové spojení pater, průhledy z venku dovnitř.

POCTIVOST MATERIÁLU

Jednoduchost a srozumitelnost domu odráží volba odolných a udržitelných materiálů: beton, dřevo, sklo. Vizuální a materiálové řešení interiéru je prosté, technické, levné. Použité materiály mají přírodní podobu. Vzduchotěsnící vrstva z OSB desek nebude již dále opláštěna. Betonové podlahy navazují na betonovou dlažbu exteriéru, stírají rozdíl mezi interiérem a exteriérem, zvou kolemjdoucí dovnitř.

TECHNICKÉ A KONSTRUKČNÍ ŘEŠENÍ

Navržený tvar objektu představuje rozumný kompromis mezi požadavkem na nízkoprahovou otevřenost a tepelně-technickým požadavkem na kompaktní hmotu. Konstrukční systém je monolitický železobetonový, s žebírkovými trámy a litými deskami. Parkování na střeše umožňuje volné uspořádání vnitřních nosných konstrukcí a otevřený půdorys. Skladba pojezdové střechy je obrácená, tepelně izolovaná extrudovaným polystyrenem. Obvodové konstrukce jsou lité železobetonové, zevnitř zateplené minerální vlnou,  opatřené vzduchotěsnící vrstvou. Stěny nemají akumulační schopnost, jež by zbytečně snižovala flexibilitu řízeného vytápění. Prosklení v přízemí je velkorysé s ohledem na morální potřebu kontaktnosti a transparentnosti komunitního centra, nejde však proti nárokům na tepelnou úsporu provozu. Suterén stávajícího kina je zachován a přebudován ve skladový a technologický prostor s dostatečnou rezervou pro ekotechnologie dnešní i budoucí.

LETNÍ CHLAZENÍ

Četnost překročení teploty vzduchu 25°C během roku je 2,4%, aktivní chlazení tedy není nutné. Letní tepelné pohody je dosaženo pomocí vnějších žaluzií na jižních, západních a východních oknech.

VĚTRÁNÍ A VYTÁPĚNÍ

Větrání je řízené rovnotlaké s rekuperací. Větrání je rozděleno do tří okruhů: sál, centrální prostor kavárny, místnosti. Vzhledem k nepravidelnému užívání prostor je větrání řízeno čidly kvality vzduchu. Ohřev teplé užitkové vody zajistí tepelné čerpadlo země-voda. Plošný kolektor je navržen pod povrchem sdíleného prostoru na západě pozemku, aby byly minimalizovány terénní práce v plochách zeleně. Vytápění objektu je teoreticky možné zajistit elektrickým dohřevem přiváděného vzduchu v rekuperačních jednotkách. Vzhledem k předpokládanému charakteru užívání, kdy v každém prostoru se v různých časech střídá velmi různé množství osob, je však navržen nezávislý ohřev pomocí teplovodních otopných těles, vyhřívaných tepelným čerpadlem nebo kombinací tepelného čerpadla a systému solárního ohřevu. Vstupní vzduch je do objektu přiváděn zemními výměníky tepla, kde se předehřívá (v létě ochlazuje) na teplotu blízkou teplotě zeminy. Množství výměníků bude v dalších stupních projektu optimalizováno s ohledem na finanční možnosti investora a požadovanou návratnost úsporných opatření.

SOLÁRNÍ PANELY

Návrh předpokládá umístění solárního pole na cca 300 m2 ploché střechy nad 2. NP. Tuto plochu lze využít pro solární panely (odhadované pokrytí 60% potřeby teplé užitkové vody + 25% vytápění), nebo pro fotovoltaické panely (odhadovaný zisk 22.000 kWh ročně = 80% potřeby elektřiny spotřebované osobami v objektu).

DEŠŤOVÁ UŽITKOVÁ VODA

Dešťová voda bude uchovávána v nádržích v suterénu budovy, a bude používána jako užitková voda (splachování, zalévání apod.) V zeleni na střeše přízemí a na okolních stěnách je možno zřídit oblázkové a pískové filtrační nádržky, doplněné zahradními vodními přepady, zpomalujícími odtok dešťové vody a zajišťujícími pasivní zavlažování v létě.

DALŠÍ TECHNOLOGIE, OPTIMALIZACE ENERGETICKÝCH OPATŘENÍ

Opatření zajišťující energetické a ekologické úspory zvyšují pořizovací náklady budovy ve prospěch budoucích provozních nákladů. Technologická filozofie návrhu je založena především na maximálním uplatnění pasivních prvků, zejména na kvalitním zateplení. Některé aktivní prvky –  solární panely, budoucí technologie atd. – lze doplnit i po dokončení stavby, přičemž je pro ně připraven dostatečný prostor v technickém suterénu a instalačním jádru.

soutěžní návrh 2016

spolupráce s Raumleipzig Architekten

mimořádná odměna

 

1070_ricany-02opr1070_ricany-01



sněžka

sněžka

soutěžní návrh na zpřístupnění Sněžky 2016

spolupráce Ing.arch. Pavel Lupač, Ing. arch. Jan Tomandl

snezka-123-vcelku-1610

 

stejkárna

stejkárna

rozšíření a úprava interiéru rodinné restaurace v Praze

Bučení krav, hluk ventilátoru, dunění plechových vrat. Syrové přítmí a ostré světlo industriálních lamp. Hrubá prkna, vyšisovaná deštěm. Na statku všední realita, v pražské restauraci, zaměřené na steaky z amerického i českého hovězího, realita nevšední.

S rozšířením prošel interiér zásadní změnou. Má jednoduchý výraz a dle zásad moderního foodstylingu dává vyniknout aranžmá jídel na talíři. Dispozice staví na jasném vztahu mezi vstupem a barem, intuitivní orientaci a účelném uspořádání komorních prostor. Materiálové řešení kombinuje nové a omšelé povrchy. Staré vytváří vlídný dekor: obnažené zdivo, nepravidelnost omítek, tvarování kleneb. Nové je navrženo v syrovém duchu hospodářských staveb: nechráněný beton, rezavý kov, opršelé dřevo. Temné prostředí toalet ostře kontrastuje s vlídným interiérem, panely z řízeně korodovaného plechu rozdělují prostor na způsob dobytčích kotců.

realizace 2016

detail na pinterest

procházet interiér

1070_stejkarna-11070_stejkarna-21070_stejkarna-31070_stejkarna-41070_stejkarna-51070_stejkarna-61070_stejkarna-7

 

rd krč

rd krč

studie přestavby rodinného domu z 90. let minulého století na dvougenerační rodinnou vilu

Návrh přestavby charakterizuje průnik zachováním výhod stávajícího domu a náhradou sporných či poruchových částí novými. Hmotově-dispoziční úpravy domu vymezují prostor dvou samostatných bytů, společně využívajících zahradu, vstup, sklep a skladové prostory.

VÝCHODISKO URBANISMU

kubické tvarování a měřítko přestavby je v souladu s architektonickou povahou okolní zástavby
Základní tvar a měřítko navržené přestavby akcentuje nepříliš zřetelnou uliční čáru a vztah k architektuře okolních domů. Výraz kubické hmoty domu je klidný, až puristický. Jednoduchost fasád vyvažuje sochařskou pestrost v přístupu k tvarování základní hmoty vily. Ta je vystavěna na stávajícím půdorysném obrysu domu.

VÝCHODISKO SDÍLENÝCH PROSTOR

sdílená místa jsou podstatou společného bydlení nejen mezi byty
Možnost sdílení vstupu a zahradní terasy je podstatou přestavby na fungující dvougenerační vilu. Oba prostory jsou umístěny v jádru stavby, jsou do nich orientovány společné a denní části obou bytů, otevírají se dál do zahrady a k příchodu z ulice. Z přízemního bytu lze na terasu vystoupit přímo francouzskými okny z pokojů, byt v patře propojuje s terasou venkovní schodiště. Sdílení hlavních místností je základním dispozičním znakem bytů; obývací pokoj v přízemí je společenským jádrem stavby, v patře je pokoj členěn do trojprostoru – společenský pokoj, jídelna s kuchyní a výstupem na terasu, společná pracovna / herna rodičů a dětí, která vytváří předpokoj soukromých ložnic. Vstupní hala v přízemí je společná pro oba byty a vede z ní schodiště do společného suterénu.

VÝCHODISKO SOUKROMÍ

atraktivitu společných prostor podmiňuje dostatek míst v ústraní
Otevřenost a množství sdílených míst vyvažuje soustředění ložnic do soukromých zón s vlastním zázemím a převažující orientací do klidné, zelení obklopené, východní části zahrady. Předprostorem ložnic je prosvětlená šatna s lodžií v přízemí a herna s ateliérovým oknem v patře. Běžně nevyužívané chodby tedy v místě přechodu od společných pokojů k ložnicím nahrazují mezičlánky se specifickou atmosférou a využitím.

VÝCHODISKO POCITOVÉ

koncept vily bez mrtvých míst
Oba byty, byť v jádru orientované do společné zahrady, mají nezaměnitelnou atmosféru vnitřních prostor, vzniklou vložením zážitkových míst do racionální a účelné dispozice. „Architecture begins where engineering ends“ (W. Gropius). Obývací pokoj v přízemí je po celé jižní straně orientován do společné zahradní terasy velkými okny a ze severu ho obohacuje rozšířený prostor kuchyně, vysunutý před severní fasádu. Z něj lze pozorovat „zapomenutou“ severní část zahrady. Schodiště do horního bytu hned od vstupu vítá příchozí, otevírá se do pokoje a dlouhým horním oknem poutá pohledy na korunu vzrostlého habru či ke hvězdám. Přestože je byt situován v patře, prosklené pásové okno a střešní terasa se schodištěm do zahrady nezadají prostor k pochybám o zahradě jako nejdůležitější součásti rodinného domu. Domácí herna s pracovnou a ateliérovým oknem může být místem společných her rodičů a dětí a zápasu s domácími úkoly. Orientace a velikost oken se více otevírá do společných míst a chrání soukromí ložnic.

ENERGETICKÁ OPTIMALIZACE
Výchozí objem současného domu není z hlediska tepelně-technické koncepce budovy nejúspornější – rozlehlá dispozice, velké ochlazované plochy. Přestavba je proto navržena s důrazem na možnost optimalizace energetického standardu budovy – kompaktní hmota ve středu obstupuje chráněný jižní dvůr, do něj se otvírá velkými okny, zatímco ze severu a po obvodě jsou okna redukována.

INTERIÉR
Barevné a materiálové řešení interiéru rozvíjí základní rysy dispozic – přehledný, účelný a klidný prostor. Střídmá a světlá barevnost stěn i nábytku je v kombinaci s jižně orientovanými pásovými okny předpokladem pro vytvoření bohatě prosvětleného vnitřního prostředí. Základem přívětivého prostoru je vystavění na světlých přírodních površích podlah, které plynule přechází do venkovních teras a lodžií.

studie 2014 – 2016

rdkrc-01ardkrc-02ardkrc-03ardkrc-04rdkrc-05rdkrc-06rdkrc-07ardkrc-08ardkrc-09rdkrc-10

 

flemingovo

flemingovo

půdní nástavba v Praze Dejvicích

Asymetrický blok s řešeným domem byl postaven před rokem 1938 v období dynamického rozvoje Dejvic podle Engelova regulačního plánu. Do druhé světové války vyrostla v okolí Flemingova náměstí základní uliční síť, z velké části jednotlivé bloky. V poválečném období byly v okolí budovány velké soubory budov fakult ČVUT, blokové uspořádání bylo nahrazeno hřebenovým a do uspořádání území vstoupila výrazná asymetrie. Budovy postavené od 80. let dodnes jsou solitérní, respektují stávající uliční síť, opouští snahu o měřítkové či architektonické návaznosti na neoklasicistní Engelův plán.

V porovnání s nástavbami sousedních domů působí řešený dům nedokončeně. Navržená nástavba opětovně vyvažuje vztah jednotlivých domů bloku.  Spodní pásový arkýř, v šířce původního rizalitu a výšce sousedících akrýřů, stírá pocit výškového rozdílu mezi domy. Horní arkýř posiluje středovou osu bloku. Dvorní nástavby dynamizují původní vertikalitu a měřítkově odpovídají proporčnímu členění hmot vnitrobloku. Měděné opláštění nástaveb je pro řešené území typické.

projekt 2016

spolupráce s monom works s.r.o.

fleming-03-1070fleming-04-1070

fleming-02-1610fleming-01-1610



britské velvyslanectví

britské velvyslanectví

úpravy zajišťující bezbariérové užívání vybraných částí Britského velvyslanectví v Praze

HISTORIE

Britské velvyslanectví sídlí od roku 1918 v paláci v Thunovské ulici pod Pražským hradem. Za fasádou s bránou, upravenou v roce 1851 ve stylu anglické gotiky, se rozprostírá výrazně lichoběžníková parcela s dvorem obestavěným dvěma křídly renesančního paláce. Při severozápadní straně dvora je situovaná trojkřídlá vrcholně barokní hlavní budova paláce, při ostatních stranách se rozprostírají barokizované fasády jednopatrové, původně renesanční budovy. Nad úroveň valbové střechy hlavní budovy vystupuje pozdně renesanční věž s barokizovanou cibulí s lucernou. Zahrada, upravená jako malý anglický park na vyvýšené rovné terase, leží přímo pod svahem zámeckých zahrad Pražského hradu a budova paláce se z ní díky zasazení do příkrého svahu jeví jako jednopatrová. Původně pozdně renesanční dům byl přestavěn v 17. století. Vrcholně barokní architektonické řešení jihozápadního průčelí paláce bylo zhotoveno spolu se středním zvýšeným přístavkem a úpravou věže v polovině 18. století (J. A. Lurago). Klasicistní úpravy budovy jsou z první poloviny 19. století (K. Pollak). Ve stylu anglické gotiky byla v letech 1850-1851 romanticky upravena vstupní věž, přestavěno nádvorní křídlo s bránou, postaveny schody v zahradě, zahradní terasní zeď a salonek (B. Grueber). Po 1. světové válce byly interiéry upraveny pro reprezentační a provozní účely velvyslanectví. Z novodobých stavebních přeměn je rozsáhlejší povahy adaptace bývalých stájí na kanceláře (1951) a přestavba konzulárního a vízového oddělení s hlavním vstupem v též části paláce (konec 20. století).

VÝCHOZÍ STAV

Přístup do většiny prostor je z hlediska užívání osob s omezenou schopností pohybu nedostatečný a nevyhovující. Stávající řešení vyžadují v nepřiměřené míře asistenci personálu – instalace mobilních ramp, užívání vedlejších vstupů, průchod přes provozní úseky atd. – a asistenci doprovodu – mobilní rampy mají nepřiměřený sklon, je nutné otevírat těžké bezpečnostních dveře apod. Nedostatečné technické a prostorové parametry výtahu a hygienických zázemí umožňují užívání stavby pouze částí skupiny osob s omezenou schopností pohybu.

ZPŘÍSTUPNĚNÍ

Návrh usiluje o uživatelsky přívětivé řešení, je kompromisem mezi požadavky legislativy, bezpečnosti stavby a památkové ochrany. Upravená místa jsou pojata architektonicky, jsou využitelná co nejširší skupinou osob s omezenou schopností pohybu, užívání nevyžaduje asistenci (bez plošin apod.). Vizuální podoba navržených opatření je co nejméně nápadná, podřizuje se exponované poloze historické budovy.

Studie 2016

bep

 


wilcza

 wilczawilcza
interiér bytu, Varšava

wilcza

interiér bytu, Varšava

Wilcza 72, dům z roku 1900, prošel neotřelou renovací, jež uchovala stopu varšavského povstání v uliční fasádě. Třípokojový byt č. 12, o velikosti 101 m2, byl upraven na minimalistickou čtyřpokojovou dispozici, jež si uchovala půvab historických prostor. Nové dělení bytu bylo vystavěno z montovaných nábytkových stěn. Jejich nepravoúhlé tvarování a převaha vestavěného nábytku umožňují efektivně využít podlahovou plochu. Obývací pokoj je ve středu dispozice, prostý výraz kuchyně v čele místnosti je zbaven chyb typizovaných kuchyňských koutů a pokračuje skříňovou stěnou do části ložnic, provedené v klidné kombinaci bílé a světlého dřeva. Na opačném konci se vchází do obývacího pokoje a místnosti pro hosty z tmavé vstupní předsíně.

realizace 2015

detail na pinterest

wilcza-02 wilcza-03 wilcza-05 wilcza-06 wilcza-07 wilcza-08 wilcza-09

francouzský institut

francouzský institut

úprava vstupních prostor Francouzského institutu v Praze

Francouzský institut je kulturní a vzdělávací instituce s tradicí zasahující do 19. století. Budova institutu ve Štěpánské ulici byla postavena v roce 1930. Po období socialistické represe byl objekt kompletně rekonstruován, roku 1993 byly prostory slavnostně znovuotevřeny za účasti Françoise Mitterranda a Václava Havla. Dnešní institut hostí kino, frankofonní knihovnu, výukové a vědecké prostory, galerii, knihkupectví a kavárnu.

Realizovaná proměna otevírá vstupní prostory mnohostrannějšímu využití. Odstraněním dělících příček vzniká variabilní prostor, schopný pojmout shromáždění návštěvníků před začátkem kulturních akcí, vhodný pro pořádání přednášek nebo koncertů, sloužící jako volný čtenářský klub knihovny. Proměna informační struktury s důrazem na IT řešení usnadňuje návštěvníkům získávání informací. Čisté architektonické řešení používá nenápadnou barevnost a jednoduchý orientační systém. Charakter interiéru se mění podle aktuální sestavy mobilního nábytku.

realizace 2015

ifp-2ifp-3ifp-4ifp-5ifp-6ifp-8ifp-9ifp-10ifp-11

 

fričova

fričova

rekonstrukce novobarokního domu, Praha Vinohrady

Novobarokní dům, postavený podle návrhu Otakara Bureše, byl původně používán jako garáž pro fiakry a byt. Ve 30. letech 20. století byl dům navýšen o patro, později byl dvůr zastavěn garážovými přístavbami.

Rekonstrukce usiluje o očištění domu od nekoncepčních zásahů a dnes již zbytečných garáží, o nalezení jeho ideální podoby. Nové využití objektu je kancelářské. Dvůr je volný, slouží pro parkování a jako relaxační místo. Společné prostory domu jsou provedeny v odstínech bílé, s důrazem na lehkost a světlost.

realizace 2015

fricova-01fricova-02

santinka

santinka

interiér bytu, Praha Dejvice

V interiéru se prolíná otisk osobnosti majitele s minimalistickým přístupem k designu. Nejvýznamnější stavební úprava mění dispoziční nedostatek bytu – dlouhou a tmavou chodbu – v přednost. Kombinací povrchů, pastelových odstínů a tvarováním stěn dochází k rozvolnění a prosvětlení prostoru. Tmavý portál v konci chodby akcentuje vstup do hlavní obytné místnosti.

Vestavěný nábytek je zpracován výhradně jako autorský. Dominantním rysem skříní je nenápadnost, podoba užitkových zdí, za nimiž je ukryt úložný prostor. Tomu jsou uzpůsobeny detaily – světlá barevnost, bezúchytkové otvírání, redukce členění, úzké spáry a eliminace klasických nábytkových detailů jako jsou odskočené sokly, lemování apod. Byt je zařízen minimalisticky, pouze nezbytným množstvím solitérního nábytku, bez interiérových dekorací.

Každý prostorový prvek byl komponován dle pravidel rozmístění výstavních exponátů. Kuchyně je součástí obývacího pokoje, avšak oproti tzv. kuchyňským koutům je v místností jasně prostorově vymezená a funkčně uspořádaná. Kuchyňský nábytek je rozdělený do dvou protilehlých dílů – úložného a pracovního – a variabilní hloubka pracovní plochy i nepravoúhlé členění úložných prostor odpovídají ergonomii vaření.

Individualizace prostoru je obohacena grafickým pojednáním stěn, tvořícím stylizovanou mapu světa s vyznačením destinací, ke kterým má majitel bytu osobní vztah.

Rostliny na terase jsou uspořádané do kompozice z pravoúhlých ostrovů a myšlenkově navazují na charakter dělení teras mezi byty. Poetika terasy kontrastuje s minimalismem v interiéru, vegetace graduje hlavní výsadbovou plochou se stromem v nároží.

realizace 2014

detail na pinterest

spolupráce na návrhu grafiky Studio Najbrt

santinka-n-01

santinka-n-02santinka-n-03santinka-n-04santinka-n-05santinka-n-06santinka-n-07

 

 

 

santinka-n-02

santinka-n-02

santinka-n-03

domov pro seniory litomyšl

domov pro seniory litomyšl

soutěžní návrh domova pro seniory

litomyslseniori-01

 

URBANISMUS, ARCHITEKTURA

OBYTNÝ SOUBOR “U NEMOCNICE”

Kvalita sousedícího obytného souboru „U nemocnice“ od AP Atelier se odvíjí od sympatického uspořádání vícepodlažního parteru a chytré kombinace soukromých a veřejných prostranství. Soubor má charakter zahradního města. Přímočarý architektonický výraz jednotlivých domů je výrazem myšlenky, že kvalita bydlení se odvíjí především od kvality uspořádání vnitřních a vnějších prostor. Ortogonální struktura naznačuje uliční síť – městský charakter.

KRAJINA

Budoucí hranici zastavěného města definuje plánovaný poldr: nad poldrem bude pole. Kontakt s otevřenou krajinou bude podstatnou součástí života domova pro seniory. Dotyk městského a krajinného charakteru je základním znakem místa.

ROZHRANÍ

Navržený dům se skládá ze dvou částí. Východní, uliční část míří k městu, tvarem a měřítkem navazuje na obytný soubor U nemocnice. Zahradní část na západě pozemku míří do krajiny, má drobnější měřítko a přejímá tvar terénu. Uliční část má veřejný, městský parter; zahradní část je soukromá, intimní. Městská krajina měkce přechází do volné krajiny.

ULICE

Uliční část navazuje na bytový dům A5 a naznačenou ulici potvrzuje jako základní charakter lokality. Zvýšení římsy a otevření parteru je reakcí na charakteristické prvky souboru U nemocnice: pokoru k terénním vztahům a kryté otevřené prostory. Stávající obytný soubor získává další pointu.

ZAHRADA

Zahradní část domova svým tvarem reaguje na tvar terénu, drobnějším měřítkem se přibližuje otevřené krajině. Plochá střecha je kryta bezúdržbovou zelení. Dům je nenápadný, v pohledech z okolních pěších tras nenarušuje ráz krajiny. Zahradní část dává celku variabilitu v uniformitě: přestože uspořádání pokojů je v celém domově stejné, ubytovací možnosti, cíle výhledů a trasy procházek po pozemku jsou maximálně proměnlivé.

SPOJENÍ

Obě části domu spojuje přízemí, z jižní zahrady kryté pod stoupajícím terénem, ze severu otevřené do uliční úrovně. Severní dvůr je veřejně přístupný, nachází se na potenciální pěší trase mezi pásem zeleně s hřišti a obytným souborem B. Interiér i exteriér přízemí je mnohovrstvá hranice: mezi veřejným a soukromým prostorem, mezi pobytem a procházením, mezi městem a krajinou. Komplexní hranice umožňuje mnoho variant komunikace – senioři se mohou zapojit do veřejného života lokality, v míře dle vlastních potřeb.

NOVÉ VAZBY: OKOLÍ

Plocha pozemku je rozdělena na veřejnou a soukromou část. Soukromá zahrada na pozemku je od veřejného dvora výškově oddělena. Zahrada slouží k procházkám seniorů a nabízí snadno dostupné blízké cíle (terasa, altán, skalka s vodním prvkem). Proměnlivé směry pěšin a vzdálenost laviček odpovídají potřebě optimální vzdálenosti mezi odpočinkovými místy. Řešený pozemek obchází po hrázi poldru veřejná pěší trasa. Návrh přidává novou bezbariérovou pěší trasu, která prochází dvorem domova a usnadňuje vzájemný kontakt mezi seniory a rezidenty. Předprostor domova při ulici Zdeňka Kopala je koncipován jako sdílený prostor: doprava je zpomalena, vozovku je možno přecházet bezpečně v libovolném místě, prostor je pobytový. Parkoviště je rozděleno na dvě samostatné části, aby nevznikal dojem rozsáhlé parkovací plochy. Do dvora domova je možný vjezd zásobování.

DISPOZICE

POKOJ: JEDNODUCHOST, VOLITELNÉ SOUKROMÍ

Pokoj o obytné ploše 20 m2 umožňuje jednolůžkové nebo dvojlůžkové uspořádání. Pokoje mají nesymetrický půdorys, aby bylo možné poskytnout spolubydlícím různou míru soukromí jednoduchým přesunutím nábytku. Každý pokoj má polo-oddělenou kuchyňku s malým kuchyňským stolkem a sezením, která má možnost kontaktu se společným prostorem obytné buňky. Míru soukromí lze regulovat dovnitř i ven s ohledem na zdravotní stav nebo náladu ubytovaných. Pokoje umožňují též bydlení partnerů.

OBYTNÁ BUŇKA: SNADNÁ ORIENTACE, UŽIVATELSKÁ PŘÍVĚTIVOST

Obytné buňky mají 15 pokojů, soustředěných okolo prosvětleného společného prostoru, který je pod vizuálním dohledem z pracovny personálu. Z důvodu univerzální použitelnosti je společný prostor koncipován dle soudobých trendů v navrhování domovů pro klienty s Alzheimerovou chorobou. Prostor reflektuje klesající potřebu samoty a nabízí charakteristická, snadno zapamatovatelná místa s možností rozmístění prvků reminiscenční terapie. Několik typů pobytových míst pro vzájemnou komunikaci je doplněno intimním zákoutím pro sledování dění. Hlavní pobytový prostor a asistované koupelny jsou situovány ve středu dispozice, v přímém kontaktu s personálem. V uliční části jsou umístěny tři buňky ve třech podlažích. Zahradní část je koncipována volněji: tvoří ji jedna buňka, rozdělená do dvou podlaží. Ve spodním podlaží je pracovna personálu, horní podlaží je dozorováno pouze nepřímo (dvoupodlažní zimní zahrada, odpočinková místnost personálu). Smyslem rozdělení je nabídnout možnost komornějšího, soukromějšího bydlení pro samostatnější seniory, pro které by uniformní ubytování s vážněji nemocnými bylo demotivující. V případě budoucí potřeby zvýšit kapacitu domova je možné obě části o 1-2 podlaží navýšit.

SPOLEČNÉ PŘÍZEMÍ: KONTAKT

Přízemí obsahuje provozní zázemí objektu, radiálně rozmístěné kolem centrální pobytové haly. Administrativní provoz je přímo napojen na pobytovou část haly, umožňuje částečné provázání provozů: jednací místnost a jídelna pracovníků mohou být přístupné i seniorům, senioři mohou vypomáhat v recepci či v kancelářích. Kontakt s intimní vodní plochou je dalším důvodem k pobytu v hale. Sousedící venkovní dvůr umožňuje setkávání seniorů a veřejnosti, přivedené do dvora novou pěší trasou. Smyslem haly je především vytvořit pestrý prostor pro kontakt bydlících se správou objektu, návštěvami i vnějším světem; tento kontakt má mnoho vrstev od intimního pozorování po společné posezení nebo procházky.
Ordinace lékaře je přístupná z interiéru domova i z ulice. Kuchyně je orientována do dvora panoramatickým oknem a umožňuje sledovat kuchařské řemeslo. Samostatný blok dílny, garáže a zahradního skladu je přístupný z exteriéru, jeho provoz je od provozu domova zcela oddělen. V tomto bloku jsou též umístěny odpady k pravidelnému vyvážení; pokud by to bylo z pohledu města žádoucí, lze do místnosti pro odpady umístit též veřejné kontejnery na recyklovaný odpad.

projekt 2014

litomyslseniori-02litomyslseniori-03litomyslseniori-04litomyslseniori-05litomyslseniori-06litomyslseniori-07litomyslseniori-08litomyslseniori-09litomyslseniori-10litomyslseniori-11litomyslseniori-12

 

blaženka

blaženka

rekonstrukce vily na Černém Vrchu, Praha Smíchov

Rekonstrukce prvorepublikové vily navyšuje počet bytů a zlepšuje dispoziční komfort, aniž by narušila neortodoxně funkcionalistický charakter objektu. Původně malý a špatně přístupný suterén je rozšířen a doplněn o garážová stání na hranici pozemku. Původní vstup do domu doplňuje bezbariérový přístup z úrovně chodníku, vestavěn je výtah. Přízemní byt zvětšuje zahradní přístavba s terasou, půda se mění na mezonetový prostor. Prostorové řešení jednotlivých bytů využívá unikátních vlastností domu, daných morfologií terénu a šikmou střechou.

Při zateplení fasád bylo zachováno historické tvarosloví, nové prvky užívají střídmý architektonický výraz, zvýšená okna akcentují panoramatické výhledy na Prahu. Historické prvky interiéru jsou zachovány a renovovány, nově doplněné prvky respektují původní styl objektu.

realizace 2014

spolupráce Atelier Šesták
autor původní studie MgA. David Töpper

blazenka-01blazenka-02blazenka-03blazenka-04blazenka-05blazenka-06blazenka-07blazenka-08

blazenka-10

centrum pro seniory

centrum pro seniory

soutěžní návrh centra s domovem pro seniory, Tábor

tabor-01

URBANISMUS

Řešené území je v bezprostřední blízkosti nemocnice, ze tří stran ohraničené zarostlými svahy a ze severu rušnou třídou. Urbanistické pojetí území odpovídá potřebám autodopravy, ale ne potřebám chodců a tím méně seniorů. Hlavní podmínkou pro kladné přijetí místa je sdílený bezbariérový prostor – zahrádky, uličky, hřiště, náměstí – ve kterém pulzuje denní život města. Přeměna velkého měřítka na komorní prostranství podél cest odpovídá kondici seniorů a pomáhá orientaci.

Předprostor nemocnice kdysi pokrývalo pole, dnes ji pokrývá asfaltové parkoviště. Lepší organizací příjezdových tras lze zvětšit kapacitu parkoviště a zprůjezdnit území. Přemíru asfaltu lze změnit ve prospěch zeleně volbou vhodných zatravňovacích materiálů pro stání či vnitřní komunikace parkovišť. Zachování a výsadba stromů poskytne stín a zmenší měřítko velkých parkovacích ploch. Urbanistickou osu mezi kruhovým objezdem a hlavním vstupem do nemocnice lze zpřístupnit chodcům a změnit ji v estetické jádro území zakončené malým náměstím.

Nejzajímavější vazby a výhledy na centrum města vznikají na východní hranici areálu, v kontaktu s přiléhající Kozí stezkou. Historická stezka má jako nejlogičtější pěší trasa z centra potenciál přivést do území chodce a nastartovat proces sociálního oživení.

ARCHITEKTURA

Centrum je rozděleno na dva samostatné objekty. Charakter budov určuje vztah mezi ortogonalitou nemocničních staveb a přírodní nepravidelností rokle. Orientace k rokli sugeruje možnost rozvinutí rostlé struktury hlouběji do území a dá vzniknout vlídným zákoutím. Tvarová zajímavost budov kombinovaná s jednoduchým a snadno čitelným výrazem navazuje na stavební historii táborského regionu, ovlivněnou prolínáním výrazné architektury jižněji položených Blat a jednoduché architektury Voticka. Prostá forma zděné architektury se světlou omítkou navazuje na původně rozšířený strohý výraz budov bez zdobných prvků.

Dům s pečovatelskou službou má charakter vlastního domova, orientovaného výhledy na centrum města a do společné zahrady u Kozí stezky.

Chráněný prostor domova se zvláštním režimem je koncipován dle soudobých trendů v navrhování domovů pro klienty s Alzheimerovou chorobou – nabízí jednoduchou orientaci kolem soukromé vnitřní zahrady, dostatečné množství kvalitních společných prostor a krátké proměnlivé chodby navržené jako společně obývaný prostor s vhodně situovanými zapamatovatelnými místy. Potenciálně stresující prvky (dveře na únikové schodiště apod.) jsou umístěny mimo zorné pole klientů. V místech, kde klienti činí rozhodnutí – změna směru, vstupy apod. – jsou koncentrovány společné aktivity, místa ošetřovatelek nebo objekty reminiscenční terapie. Kontakt s venkovním prostorem podporuje cirkadiální cyklus obyvatel, pobyt a činnost na zahradě je součástí terapie.

Mezi objekty vzniká komorní náměstí, které umožňuje kontakt mezi generacemi, obyvateli a veřejností – sem jsou orientovány vstupy do objektů, víceúčelový sál, kanceláře poskytovatelů sociálních služeb s nízkoprahovým charakterem a dětské hřiště.

projekt 2014

spolupráce RaumLeipzig Architekten
1. cena v  architektonické soutěži

tabor-02

tabor-03tabor-04tabor-05tabor-06tabor-07tabor-08

svojetice

svojetice

úprava interiéru rodinného domu

 

Úprava zostřuje rysy odpočinkové a společensky aktivní části obývacího pokoje s kuchyní. Jídelní prostor u kuchyně má význam srdce domu – většina denních aktivit se odehrává zde. Velký centrální stůl ze starého masivního dřeva má zvýšenou pracovní rovinu, probíhá na něm většina kuchyňských prací a méně nápadná kuchyňská stěna je minimalizovaná. Doplňky ke kuchyňskému stolu jsou individuální – každý má svou oblíbenou židli, svítidlo, barvu. Knihovna zobytňuje minimalistickou kuchyň. Výtvarná relaxační lavice dodává prostoru hravost.

 

projekt 2014

svojetice-01

svojetice-03svojetice-04
svojetice-07

 

h55

h55

soutěžní návrh komunitního centra v Hloubětíně, Praha

Předpokladem fungujícího komunitního centra je komorní měřítko, univerzální a nízkoprahová forma. Návrh rozvíjí hodnotné prvky genia loci lokality – zalamovanou uliční čáru a malé měřítko ulice – a doplňuje neobvyklou gradaci budov ve svahu s dominantou kostela.

Společenský sál je zahloubený, má podobu jedné z mnoha pro území charakteristických zdí a zídek. Dispozice je komprimována na účelné minimum. Kavárna je brána do zahrady, střecha sálu je venkovní platforma pro knihovnu.

Police za okny knihovny tvoří živý výkladec. Technické pojetí návrhu se soustředí na dosažení energetických úspor.

projekt 2014
odměna poroty v architektonické soutěži

h55-01h55-02h55-03

h55-04h55-05h55-06h55-07h55-08



bird&bird

bird&bird

klientská zóna advokátní kanceláře v Dětském domě, Praha Staré Město

Cílem projektu bylo vytvořit prostředí, odpovídající flexibilnímu způsobu práce velké právnické firmy.

Odstraněním chaotických stavebních nánosů po předchozích nájemnících vznikl střízlivý otevřený prostor, charakterově blízký spíše literární kavárně než sálové kanceláři. Café-bar s kavárenskými stolky podtrhuje neformální atmosféru klientské zóny s recepcí a jednacími místnostmi. Srdcem zóny je víceúčelový prostor, využitelný jako seminářový sál pro 40 osob či k neformálním jednáním a relaxaci zaměstnanců. Autorská čalouněná křesla umožňují uspořádání do různorodých sestav včetně vytvoření svislé stěny. Prosvětlená stropní konstrukce z barrisolu je výtvarnou paralelou k firemnímu vizuálnímu stylu, vznáší se nad klientskou zónou a sjednocuje členitý prostor. Křídlo směřuje návštěvníka do srdce kanceláře, slouží tedy i jako orientační mapa a řeší výchozí problém umístění vstupu v nejužším místě interiéru.

realizace 2013/2008
detail na pinterest

twobirds-01twobirds-02twobirds-03twobirds-04twobirds-05twobirds-06

twobirds-08

twobirds-13

 

 

hřibojedská

hřibojedská

úprava rodinného domu, Praha Dolní Počernice

Rodinný domek se nachází na pozemku s minimálním přístupem slunce. Úpravy mění interiér, zlepšují oslunění a doplňují verandu. Prosklená veranda naruší hranici mezi interiérem a zahradou, výtvarný záměr je založena na radikálním barevném kontrastu mezi domem a přístavbou. Interiérová řešení reflektují vnější barevné pojetí a dotváří pocitovou návaznost mezi vnitřkem a vnějškem domu. Přeměna domu je prováděna postupně, s minimálními náklady, za trvalého obývání.

realizace 2013

 

nábřeží řeky loučné

nábřeží řeky loučné

soutěžní návrh na úpravu veřejných prostor, Litomyšl

nabreziloucne-11

 

Stávající park je výjimečnou přírodní zónou v těžišti města. Návrh posiluje vztahy mezi přírodou říčního koryta a rostlou strukturou městského jádra, opouští nivelizační přístup. Podobu parku určuje příroda. Hřiště se prolíná s okolím, vodní hladina se stává součástí života parku.

Pěší lávky přes řeku jsou jádra příčných os, jejichž zvýrazněním se posiluje spojení parku s městem. Historická ulice Vodní valy se mění v bezpečný sdílený prostor, jehož charakter určují stopy historické parcelace propsané do dlažby.

Zásahy do porostů jsou minimální, nenarušují ekologickou rovnováhu a souzní s romantickým půvabem břehů. Provádějí se postupně s ohledem na přirozenou adaptaci ekosystému a hnízdění. Navržené úpravy jsou snadno realizovatelné s možností zapojení veřejnosti.

projekt 2013

spolupráce Klára Dědová

 

nabreziloucne-10nabreziloucne-12nabreziloucne-13

 

nabreziloucne-14

symbio

symbio

interiér kanceláří, Praha Holešovice

Koncepce interiéru kanceláří ve dvou patrech industriálních historických garáží je vystavěná na analýze komunikačních vztahů uvnitř firmy a konceptu Employee-Friendly Work Environment. Spodní patro slouží jako reprezentativní klientská zóna s recepcí, jednacími místnosti, dětským koutkem a pracovními místy pro komunikaci s klienty. V pojetí interiéru se výrazně uplatňují prvky firemního designu. V horním patře je neformálně pojaté pracovní prostředí. Nepravidelně užívaný výtvarný a fotografický ateliér je umístěn ve středu dispozice s možností dočasného uzavření. Nahrávací studio pro tvorbu zvuků je v malé, akusticky oddělené místnosti. Výtvarná koncepce umožňuje jednoduché čtení industriálního charakteru budovy.

realizace 2013/2007

finalista soutěže Zasedačka roku 2014

detail na pinterest.com

procházet 1. patro

procházet 3. patro

symbio-01

symbio-06symbio-07symbio-08symbio-09symbio-10symbio-11symbio-12symbio-13symbio-14
symbio-17

symbio-21

 

rd mělník

rd mělník

rodinný dům na viniční louce, Mělník

Umístění domu ve středu nevelké parcely na okraji Mělníka akcentuje propojení domu s charakteristickými výhledy do okolí. V každé fasádě je zapuštěn jediný otvor, rámující specifický a pro každou sranu jiný výhled – na vinici, panoráma města, barokní kapli. Velikost a proporce okenních otvorů je určena především vztahem mezi interiérem a charakterem jednotlivých výhledů. Zapuštění oken chrání místnosti před ostrým slunečním světlem a vytváří v interiéru hluboké niky pro vestavný nábytek.

rd-melnik-14

V přízemí jsou denní prostory, v patře soukromé ložnice. Nízký parapet v dětských pokojích a herně nebrání ve výhledech ani těm nejmenším. Dřevěné schodiště prochází středem domu až do střešní nástavby s terasou, která nabízí další, odlišný obytný prostor.

Dům je optimalizován pro nízkoenergetický standard. Vytápění zajišťuje peletkový kotel. Větrání je přirozené. Kanalizace je svedena do domovní čističky odpadních vod, dešťová kanalizace je svedena drenážním systémem do vsaku. V zahradě jsou vysázeny jedlé druhy rostlin a starých krajových odrůd ovocných dřevin namísto novodobých zahradních hybridů.

realizace 2012

detail na pinterest

rd-melnik-01

rd-melnik-04rd-melnik-05melnik-novy-08
rd-melnik-08melnik-novy-07melnik-novy-06melnik-novy-01melnik-novy-03

 

 

 

kischova

kischova

interiér bytu v domě Erwin, Praha Nusle

Byt v novostavbě poblíž metra Pražského povstání nabízí prostorný obývací pokoj a výhledy na údolí Vltavy. Přáním investora bylo zkultivovat developerský standard a navrhnout kompletní zařízení bytu s důrazem na funkčnost a prostou estetiku. V interiéru je dbáno na funkční uspořádání poskytující dostatek úložných prostor. Hlavní pokoj je rozdělen na obývací a kuchyňskou část pomocí tvarovaného pracovního stolu. Rozměrná pracovní část kuchyně v čele místnosti je provedena v nenápadné bílé barvě, menší skříň s kuchyňskými spotřebiči vyvažuje kompozici barevným kontrastem. Tento princip je použit i na ostatním nábytku v bytě: velké vestavné skříně jsou vždy jednoduché a bílé, menší solitérní prvky mají výraznější tvary i barevnost a dotvářejí vzájemné souvislosti.

realizace 2012

kischova-01

kischova-02kischova-03kischova-04kischova-05kischova-06

na dědinách

na dědinách

úpravy rodinné vily, Praha Michle

Stavební úpravy vily jsou založeny na principu efektivního využití prostoru. Nad dvěma malými byty v přízemí vznikla v patře kancelář s vloženou jednací buňkou. Ústředním motivem podkrovního bytu s galerií je centrální obytný prostor, ze kterého jsou přímo přístupné všechny ostatní místnosti. Díky tomu nejsou v bytě nežádoucí chodby. Krbová stěna s úložným prostorem ve středu dispozice vymezuje klidnější místo před vstupy do ložnic. Rohové pásové vikýře navýšily užitnou plochu podkroví pod stanovou střechou o 15%.

realizace 2012

dediny-r1dediny-r2dediny-r3dediny-r4dediny-r5dediny-r6dediny-r72

nassfeld

nassfeld

interiér mezonetového bytu v horském apartmánovém domě, Rakousko

Charakter mezonetového bytu v apartmánovém domě v Alpách byl koncipován jako rekreační bydlení. Dominantou obývacího pokoje na spodní úrovni bytu jsou krbová kamna se schodištěm, vyhřívaná plocha pod schodištěm je určena zejména pro relaxaci po sportu – analogie starých kachlových kamen, ležení za pecí. Schodiště se obtáčí okolo tubusu s vnitřními zrcadly, který vytváří zábavné optické efekty a oživuje komunikaci mezi úrovněmi bytu. V horní části mezonetu jsou tři malé ložnice a koupelna se saunou s výhledem na alpské vrchy. Police v dětských ložnicích jsou  vyrobené podle návrhů dětí. V interiéru převažují přírodní materiály, vestavěný nábytek je zpracován výhradně jako autorský.

realizace 2012

nassfeld-01

nassfeld-02nassfeld-03nassfeld-04nassfeld-05nassfeld-06nassfeld-07nassfeld-08nassfeld-09nassfeld-10nassfeld-11

nučice

nučice

přestavba rodinného domu

Ústředním motivem rekonstrukce je hlavní obytná část, tvořená spojením obývacího pokoje v přízemí s pracovně-herním prostorem v podkroví, skrze vybourané zrcadlo klenby. Uspořádání dalších místností je úzce provázané s pozicí kleneb a pasů a pracuje se systémem montovaných nábytkových příček. Okna jsou optimalizována, aby byl interiér dobře prosvětlen a prosluněn i přes nevýhodnou orientaci domu. Přístavba a garáž mají charakter lehkých technicistních konstrukcí, tvarovaných tak, aby nezhoršovaly přístup slunce do zahrady. Malá zahrada vytváří atriový dvorek s pobytovou terasou přímo navazující na obývací pokoj.

projekt 2012

nucice-01nucice-022

nucice-05nucice-06nucice-07nucice-09

 

hostivař

hostivař

rodinné domy, Praha Hostivař

hostivar-01

Dvojice rodinných domů uzavírá pás rezidenční zástavby mezi železničním koridorem a průmyslovým areálem. Vzájemné prolnutí hmot rodinných domů a zázemí slouží k oddělení uliční části parcel a chrání jižní svah zahrad před provozem průmyslového areálu. Hlavní pobytový prostor v přízemí obou domů sleduje průběh terénu a spolu s pobytovými terasami je uspořádán do různých výškových úrovní. Pásová okna vnáší do ložnicových pater bezprostřední kontakt se zahradou. V jihovýchodních rozích parcel jsou umístěny dřevěné altány s venkovním krbem a sprchou.

realizace 2012/2007

spolupráce Atelier Šesták

hostivar-schwarzplan

hostivar-02

hostivar-03hostivar-04

zemědělská

zemědělská

rekonstrukce činžovního bytu, Praha Dejvice

Úpravou dispozice staršího bytu vzniká dětský pokoj, kuchyně se stává součástí obývacího pokoje, zvyšuje se kapacita zázemí. Rekonstrukce je zacílena na zlepšení technického stavu a obnovu vybavení bytu. Většina historických prvků je renovována do původní podoby.

realizace 2012

zemedelska-02
zemedelska-08zemedelska-09zemedelska-10

 

opava

opava

soutěžní návrh bydlení pro samostatně obslužné občany důchodového věku

Dva domy, vzniklé jako kompoziční reakce na narušený urbanismus ulice, vytváří pozitivní pocitové návaznosti. Charakterizuje je přívětivé měřítko a sousedská vnitřní kapacita. Vstupy do objektů jsou orientované do zahrady se zachovanými vzrostlými stromy. Ústředním funkčním prvkem zahrady je průchozí komunikace, která slouží k relaxaci, korzování rezidentů či k průchodu návštěvníků. V zahradě je dětské hřiště, altánek, lavičky a parkové cvičební prvky.

Základní stavební prvek objektu tvoří unifikovaná bytová jednotka s poměrem stran 1:2. Garsonky jsou členěné na soukromou obývací část s lodžií a denní návštěvní část s kuchyňkou a uzavíratelným průhledem do pobytové chodby.

soutěžní projekt 2011

spolupráce monom works s.r.o.

opava-01opava-02opava-03opava-04opava-05

byty kavčí hory

byty kavčí hory

klientské úpravy bytů v Rezidenci Kavčí Hory, Praha Nusle

Klientské úpravy 15 bytů v Rezidenci Kavčí Hory, velikostí od garsonek po velké propojené byty. Krom výtvarné koncepce soukromých i vzorových interiérů jsou byty přizpůsobeny konkrétním uživatelským požadavkům. Provedena jsou opatření pro zlepšení dispozičních vazeb, prosvětlenosti vstupních prostor a chodeb, či pro zlepšení akustického pohodlí.

realizace 2011/2010

bytykavcihory-01bytykavcihory-02bytykavcihory-03bytykavcihory-04bytykavcihory-05

 

pod vinicí

pod vinicí

bytový dům, Beroun

Pětipodlažní bytový dům na okraji jednoho z berounských sídlišť má 28 bytů a 2 parkovací podlaží. Vizuální pojetí budovy je metafora – kontrast živého organismu bytů sevřeného ohraničující konstrukcí. Každý byt prorůstá nad povrch této slupky balkonem nebo lodžií, v čelních fasádách jsou byty obnaženy za pásovými balkony. Prostor garáží se na fasádě projevuje linkou úzkých pásových oken. Poslední podlaží je ustoupené. Okenní otvory jsou vysoké a často sdružené. Tyto kompoziční postupy společně s použitím teplých barevných odstínů zjemňují charakter objektu: dům působí dojmem drobnějšího měřítka, než je u podobných bytových domů běžné.

realizace 2011

spolupráce Atelier Šesták

beroun-01beroun-02beroun-x1beroun-x2

beroun-03beroun-x4

 

 

malovanka

malovanka

interiér činžovního bytu, Praha Střešovice

Interiér bytu v činžovním domě z 30. let minulého století pracuje se třemi myšlenkovými liniemi, kterými jsou historie domu, vnímání dočasnosti a záznam přítomnosti. Citlivá renovace původních prvků je doplněna novými jen v nezbytné míře. V kontrastu k základní bílé barevnosti působí parketové podlahy z exotických dřevin a barevné řešení kuchyně s koupelnou. Vše je doplněno autorským nábytkem jednoduchých tvarů a konstrukcí.

realizace 2010

malovanka-01malovanka-04malovanka-05malovanka-x3
malovanka-07malovanka-08malovanka-x2

 

čerčany

čerčany

rodinný dům ve svahu, Čerčany u Benešova

Dům je umístěn v mírném severozápadním svahu na okraji obce v rychle se rozvíjející zástavbě předměstských obytných domů různorodého měřítka a kvality. Snaha o sladění hmoty domu s typickou geomorfologií svahu se zvlněným horizontem vedla k dělení domu do dvou částí s pultovými střechami v mírném sklonu. Střecha hlavní hmoty kopíruje svažitost terénu, drobnější hmota garáže z něj v opačném sklonu vystupuje. Na obývací pokoj v přízemí navazuje veranda, která je tradičním prvkem chatových staveb v Posázaví a slouží jako snídaňová či relaxační místnost a jako slunečně-tepelný filtr na jižní straně fasády. V patře jsou umístěny ložnice, společná koupelna se saunou a přímý vstup z haly do zahrady po střeše garáže.

projekt 2010

čerčany-01

čerčany-02

čerčany-06čerčany-07

 

přestavlky

přestavlky

interiér školícího střediska, Přestavlky u Slap

Socialistické středisko u přehrady Slapy je rekonstruováno na moderně vybavené školící prostory s ubytováním. Dispozice jsou upraveny dle současných standardů. Učebny a salonek jsou orientovány do kavárenského prostoru. Materiály a barvy jsou voleny tak, aby zdůrazňovaly souvislosti mezi místnostmi. Ojedinělý přístup „navrhování při provádění“ byl zvolen pro zrod pánského klubu v kotelně.

realizace 2010

spolupráce Atelier Šesták

prestavlky-01
prestavlky-03

prestavlky-x07

prestavlky-05prestavlky-08prestavlky-09prestavlky-x10

 

nový porg

nový porg

interiér gymnázia a základní školy, Praha Krč

První obnovené reálné gymnázium bylo rozšířeno o nový areál budov v Praze Krči. Pavilóny z 80. let 20. století jsou modernizovány ve třech stavebních etapách. Koncept nového interiéru efektivně využívá původní dispozice. Nábytek kombinuje typové a atypové prvky. Komunikační prostory školy jsou doplněny sítí specifických míst, které dodávají typizované budově svébytný charakter. Barevné řešení je střídmé, vizuální ráz interiéru počítá s průběžnou  účastí žáků i učitelů na jeho utváření. Součástí rekonstrukce je vytvoření nového výrazného hlavního vstupu a nového hřiště.

realizace 2010/2009/2008

spolupráce Ing. arch. Milan Daněk a Atelier Šesták

novyporg-x08
novyporg-02novyporg-03novyporg-04novyporg-05novyporg-06novyporg-07

hanspaulka

hanspaulka

rekonstrukce a dostavba dvojdomku, Praha Dejvice

Úprava poloviny dvojdomku ve vyhlášené rezidenční čtvrti Dejvic je myšlenkovou hříčkou. Vstupní část domu je rozšířena o výrazově klidný a charakteristický prvek lokality – zádveří s krytým příchodem od branky. Boční přístavbou garáže s pracovnou se rodí měřítkový a výrazový konflikt s původním domem a k opětovnému zklidnění dochází na jižní straně doplněním terasy s venkovními schody do zahrady.

realizace 2011

hanspaulka-01

hanspaulka-04

hanspaulka-06

kounice

kounice

příměstský rodinný dům

Jednoduchá forma domu doplněná nízkou dřevěnou přístavbou zohledňuje historické zvyklosti stavění v okolí. Podélná přístavba navazuje na tradici malých hospodářských staveb u okraje pozemku. Na přístřešek pro auto navazuje posilovna se saunou a garsonka, která může být progresivním řešením budoucího bydlení seniorů a návratem ke společnému rodinnému bydlení a mezigenerační pomoci. Zahrada je u vjezdu na pozemek otevřená do sousedství, směrem do hloubky parcely nabývá soukromý charakter.

kounice-10kounice-11

V přízemí domu se nachází hlavní obytné místnosti s pracovnou a nezbytné vybavení. Ložnicové patro je propojeno s přízemím výrazným prostupem v podlaze, pro osvětlení obytné galerie slouží diagonální kopilitová stěna.

projekt 2008

kounice-01

kounice-03kounice-06
kounice-07

 

hellboy

hellboy

novostavba multifunkčního domu, Praha Smíchov

Předmětem návrhu je novostavba multifunkčního administrativního objektu na exponovaném pozemku v pražských Košířích. Návrh dotváří nejasnou urbanistickou povahu místa, postrádajícího pointu. Kompozice objektu – nepravidelný prosklený hranol ukončený deskou proměnlivé fasády a předstupující jednací místnost ve tvaru koule – dotváří netradiční ukončení klínovité blokové řady.

projekt 2008

spolupráce Atelier Šesták

hellboy-01
hellboy-04

hellboy-05hellboy-03hellboy-x3hellboy-x1hellboy-x2

 

suzuki

suzuki

studie autosalonu

Rozvržení autosalonu se servisem a administrativní částí redukuje prostorové nároky na parcelu. Kompozice zaklesnutých trojbokých hranolů umožňuje využít střechu a patro jako část showroomu. Na střešní terase je kromě externí expozice také terasa kavárny, fungující rovněž jako předávací místo. Zákaznická část budovy je prosklená, doplněná dřevěnými slunolamy. Servisní část je opláštěna šedým industriálním kovem. V exteriéru i interiéru se výrazně uplatňuje přírodní dřevo a zeleň, které – jako kontrast k dynamickému charakteru kovu a skla – dodávají prostoru klid a přirozenost.

projekt 2008

spolupráce Engram s.r.o.  a Atelier Šesták

suzuki-01suzuki-x2suzuki-x3suzuki-x1

suzuki-05suzuki-x6suzuki-x7

 

chaty

chaty

studie rodinných domů a chat

Tři typy domů jsou výsledkem úvah nad letním bydlením v Posázaví. NDomy umožňují krátkodobé i celoroční obývání. Charakter domů je ovlivněn myšlenkou, že zahrada a okolní příroda jsou důležitější než stavba samotná.

Domy se odlišují velikostí, náplní a použitým materiálem. Společné je situování na pozemku, tradiční výchozí hmota (podkroví se sedlovou střechou), materiály blízké letním chatám a současné stavební detaily.

Oproti běžným domům je větší pozornost věnována zabezpečení proti vloupání po dobu dlouhé nepřítomnosti majitelů.

koncept 2008


letnidomek-01

První typ (a) je největší, půdorysné členění odpovídá rodinným domům dnešního standardu: přízemí je využito především jako obývací prostor, v patře jsou ložnice orientované do zahrady a prosvětlená hala s jednoramenným schodištěm. Úzká proporce štítu dům opticky zmenšuje. Hlavní stavební materiál je dřevo ve dvou přírodních barvách. Zabezpečení otvorů je provedeno buď ‚mřížováním‘ dřevěnými sloupky, nebo pomocí posuvných stěn, nahrazujících okenice.

Typ (b) dodržuje stejný stavební program, zaměřuje se na zmenšení velikosti domu. Půdorys přízemí je výrazněji dělen na funkční zóny pomocí posuvných stěn. Čtyři ložnice v podkroví jsou orientované na všechny světové strany. V materiálovém řešení se uplatňuje uměle korodovaný měděný plech. Z plechu jsou též otvíravé okenice, takže se po jejich uzavření stává dům zvenku kompaktní neproniknutelnou skořápkou – je zazimován.

Typ (c) je redukován na nejmenší možnou míru, zastavěná plocha je pouhých 5,5x8m. Dům má dvě ložnice v patře, jedinou koupelnu, obytný prostor s vysokým stropem a malou galerií v podkroví. Architektonický ráz domu užívá nepravidelné geometrie, což napomáhá zmenšení obestavěného prostoru a dává domu nezaměnitelný výraz. Materiálové řešení využívá opět dřevo dvou barev.

 

av čr

av čr

Institut aplikovaných věd a dostavba Ústavu termomechaniky Akademie Věd ČR, Praha Libeň

Nová budova Institutu aplikovaných věd slouží jako vědecký inkubátor i jako reprezentativní vstupní objekt areálu akademie. Budova krom laboratorních, kancelářských a ubytovacích kapacit nabízí velký přednáškový sál, informační centrum a prostory pro veřejnost. Zpřístupnění areálu veřejnosti napomáhá velký centrální park. Architektonické řešení institutu i nové budovy Ústavu termomechaniky je založeno na použití krystalických hmot, symbolizujících – v kontrastu k okolní panelové zástavbě – svébytnost současné vědecké práce. Nepravoúhlé tvary jsou použity i v řešení parteru, kde je využito sbíhajících se tvarů k naznačení směrů pohybu a perspektivním klamům.

projekt 2008/2007

spolupráce DES Praha s.r.o.

iav-01

iav-03iav-05iav-04

iav-07iav-08

 

tokovo

tokovo

kancelářské prostory v paláci Tokovo, Praha Holešovice

Architektonickou tvář návrhu ovlivnil respekt k významné výškové budově a snaha o uměřenost a důstojnost, odpovídající povaze úřadu. Předmětem realizace byla vstupní část s recepcí, velký konferenční sál s předprostorem  a kancelářská podlaží. Investor kladl důraz na použití cenově dostupných materiálů a podporu českých výrobců.

Použití skleněných příček symbolizuje transparentnost úřadu. Pro zajištění nezbytného soukromí jsou příčky pískovány částečně průhlednými vzory. Míra průhlednosti se liší dle funkce místnosti, grafický vzor je parafrází fasády objektu. Návštěvník i zaměstnanci mají přehled o obsazení kanceláří a jednacích místností, aniž by byli rušeni v práci.

realizace 2007

společný projekt s Atelier Šesták

tokovo-01

tokovo-02tokovo-07tokovo-03
tokovo-05tokovo-06

 

chemoprojekt

chemoprojekt

administrativní budova, Praha Strašnice

Nový administrativní objekt v areálu firmy – úměrný půdorysným a výškovým poměrům pozemku – se nachází na hranici mezi nižší bytovou zástavbou a rozvolněným pásem průmyslových staveb různých objemů a tvarů. Členění do tvarově strohých kubických hmot volně zakončuje uliční zástavbu. Kancelářské prostory doplňuje restaurace v přízemí, fitness pro zaměstnance a samostatně stojící objekty určené pro ubytování hostů a zaměstnanců.

projekt 2007

spolupráce Atelier Šesták

chemo-1

chemo-2chemo-3

 

mezonet letná

mezonet letná

Interiér mezonetového bytu, Praha Letná

Stávající byt pod půdou novorenesančního činžáku se rozšiřuje na mezonetový prostor s otevřeným podkrovím. Návrh zvýrazňuje mezipodlažní souvislosti pomocí průhledů a průběžných stěn. Na spodní úrovni je ložnicové patro, na rozšířené mezipodestě schodiště je umístěna malá pracovna s knihovnou a prostor podkroví je koncipován jako obývací pokoj s kuchyní. Výrazně tvarovaná vestavba u štítové stěny slouží jako zázemí, prostor pro vysoké skříně kuchyňské linky. Vyvýšené pódium nad vestavbou umožňuje výhled střešními okny na Stromovku.

projekt 2007

mezoletna-01letna-x01 letna-x02mezoletna-03
mezoletna-04mezoletna-05

 

mezonet nusle

mezonet nusle

interiér mezonetového bytu s galerií, Praha Nusle

Požadavkem investora bylo vytvořit v půdním bytě 2+kk místo pro domácí kancelář. Vzhledem k malým rozměrům bytu jsme pracovnu umístili na ocelovou galerii vloženou nad část obývacího pokoje s kuchyní. Transparentnost materiálu galerie zajišťuje dostatečné prosvětlení pokoje pod ní a nedochází k pocitovému zmenšení místnosti. Profilace taženého plechu vytváří jemné optické a světelné efekty. Mlynářské schodiště na galerii umožňuje pohodlnou chůzi nahoru i dolů i přes značnou strmost stupňů.

realizace 2006

vybraná práce přehlídky Český interiér 2007

mnusle-x1
mnusle-02mnusle-x2mnusle-06
mnusle-05

 

hotel k vítkovu

hotel k vítkovu

novostavba hotelu s obchodní pasáží

Novostavba se nachází v proluce na frekventované Koněvově ulici v Praze 3. Parter objektu je využit pro komerční prostory s obchodní pasáží, umožňující průchod domem do parku na vítkovském kopci. Vyšší podlaží jsou využita pro hotelové pokoje, suterén je parkovací.

Architektonické členění objektu je založeno na nenápadných kontrastech: na jednoduché a čisté kombinaci vertikálních a horizontálních linií, na rytmizovaném členění fasádních ploch. Rytmus fasád dělí hmotu na menší celky, vytvářející kompoziční propojení s vedlejšími měřítkově naprosto nesourodými objekty. Parter a ustupující poslední podlaží využívají dynamické diagonální členění, kontrastující s hlavní hmotou fasády. Materiálové řešení je střídmé, založené na kontrastu černé a bílé barvy a na kontrastu matných omítek a lesklých skleněných ploch.

projekt 2006
společný projekt s atelierem DES Praha s.r.o.

hotelkvitkovu-01hotelkvitkovu-02hotelkvitkovu-03hotelkvitkovu-04hotelkvitkovu-05

 

chlum

chlum

úprava hospodářské části statku na bydlení, Chlum nad Malší

Předmětem návrhu je vestavba podkrovního bytu do tradičního jihočeského venkovského statku. Nový byt je vestavěn nad stávající obytnou částí, aby zůstal zachován kontakt dvou generací rodiny. Vestavba je samostatně přístupná venkovním schodištěm parafrázujícím tradiční dřevěné schodiště hospodářského ochozu. Schodiště je kryto stříškou, která dává nejvýrazněji ze všech nových prvků najevo svou příslušnost k době: slouží jako vizitka současného interiéru za ní. Charakter a výškovou členitost bytu určuje zachovaná krovová soustava. Půdorys vestavby se odvíjí od malé hloubky traktu a možnosti pouze jednostranného osazení oken. Projekt počítá s možností budoucícho doplnění vnitřního schodiště mezi oběma byty.

projekt 2006

chlum-01

chlum-02chlum-03

 

chlum-07

 

václavák

václavák

soutěžní návrh úprav Václavského náměstí v Praze

vaclavak-06

Dnešní Václavské náměstí je vnímáno v mnoha vrstvách: omšelý národní symbol, zastaralá turistická tepna, zóna kriminality, symbol nefungující pražské dopravy. Soutěž měla za cíl najít budoucí vzhled prostoru za požadavku zachování již navržených dopravních úprav (přeložení severojižní magistrály, návrat tramvají do náměstí, podzemní garáže). Náš návrh se snaží rozproudit opomíjenou diskuzi o tom, jaký má mít nejdůležitější pražské náměstí charakter. Považujeme za nesprávné přistupovat k úvahám o náměstí s nostalgickou pietou a podporovat tak současný charakter prázdné národní ikony.

Výchozím prvkem návrhu je nahrazení většiny osobní automobilové dopravy. Odstraněním bariéry dvouproudé okružní silnice se náměstí otevře pro pěší. Náměstí je po své délce rozděleno na několik zón s různou náplní. Střídají se zóny kulturní, shromažďovací, turistické, transportní atd. Betonová stavební skulptura, procházející osou celého náměstí, je nabídkou činností a zábavy – sestává z kapslí, jejichž využití se mění podle aktuální potřeby, od krátkodobých instalací velikonočních trhů po trvalé kulturní či komerční prostory.

Součástí návrhu je též znovuoživení divadla Bouda. Navržené odstranění budovy ČKD na Můstku umožní navrácení symbolické hodnoty tomuto mostu mezi živelnou zástavbou Starého Města a sebejistými stavbami moderní doby.

projekt 2005

 



vaclavak-03vaclavak-04vaclavak-05

podkroví bubeneč

podkroví bubeneč

interiér podkrovního bytu, Praha Bubeneč

Cílem projektu bylo přizpůsobit nově realizovaný podkrovní byt svým obyvatelům. Pro zajištění rovnoměrného měkkého světla bylo rozšířeno propojení denních částí bytu a do střešních světlíků byly vsazeny plexi desky. V obývacím pokoji byla vytvořena krbová stěna, kuchyň je přestavěna a doplněna o bar s nábytkovou komorou.

Ve schodišťové hale bylo původní rustikální zábradlí vyměněno za skleněné. Většina nábytku je vyrobena na míru. Nábytek kombinuje tmavší ořechové a světlejší olšové dřevo, doplněné lakovanými povrchy.

realizace 2005

vybraná práce přehlídky Český interier 2006

podkrbub-x1 podkrbub-x2

 

europan 8

europan 8

soutěžní návrh revitalizace městské části Praha Podbaba

Řešený prostor – severní okraj Prahy, vklíněný mezi Vltavu a osadu Baba – působí dojmem mrtvého prostoru, určeným dopravním prostředkům. Soutěžní návrh se snaží proměnit prostor v živou bránu do města, plnou obchodu, kultury, zeleně. Ústředním prvkem návrhu je ‚zelený most‘, klenoucí se nad čtyřproudou silnicí i železničním viaduktem. Most, porostlý trávou a vzrostlou zelení, propojuje přerušené biokoridory a periferní cyklotrasy, automobilovou dopravu svádí do tunelu. Jižně od mostu je navrženo náměstí, obklopené novými budovami se smíšenou obytně-administrativní náplní. Rozlehlá industriální hala se stává kulturně-komerčním těžištěm místa, zásobování a osobní doprava je podzemní, terén je uvolněn pro chodce. Vlaková zastávka Praha-Bubeneč je přesunuta pod klenbu zeleného mostu.

projekt 2005

europan8-01europan8-02europan8-03

 

bydlení pro seniory

bydlení pro seniory

dostavba a adaptace bývalé školy na domov pro seniory, Praha Lysolaje

Novým funkčním využitím rekonstrukce a dostavby malého klasicistního domu ve svahu lysolajského údolí je komorní domov pro seniory s drobným zázemím služeb. Klenutý prostor v přízemí rekonstruovaného objektu slouží jako jídelna, kavárna a víceúčelový sál, v patře a podkroví je denní stacionář, pokoje respitní péče a zázemí pro terapeuty. Hlavní vstup do domova je navržen v prosklené dvoraně, která spojuje původní dům s dostavbou. Transparentní plášť dvorany nabízí obyvatelům domova výhledy do okolních zahrad a zelených svahů údolí, přičemž původní klasicistní dům chrání soukromí před pohledem z ulice. Ve dvoraně je kromě recepce odpočinková hala, v patrech jsou galerie se vstupy do pokojů. Třípodlažní dostavba je zasazena do příkrého jižního svahu, jsou v ní pokoje a apartmány se zázemím. Pokoje o celkové kapacitě 30 lůžek jsou orientovány do soukromé zahrady ve svahu. Každý pokoj má předzahrádku nebo balkon. Společná část zahrady je terasovitě upravena. Venkovní schodiště umístěné na východní straně pozemku umožňuje přímý vstup z ulice do zahrady. Objekt je bezbariérový.

lysolaje-x5

1NP/2NP/3NP

Při výběru použitých materiálů a barevného ladění celého domova byly upřednostněny přírodní materiály, teplé a světlé odstíny v interiéru i exteriéru. Velký důraz je kladen na působení vegetace na atmosféru domova. Většina stávajících stromů je zachována a doplněna novými. Krycí konstrukce vstupní haly, zábradlí balkonů a dělících zástěn jsou navrženy jako treláž pro popínavou zeleň.

projekt 2005

spolupráce Atelier Šesták

vítězný projekt vyzvané architektonické soutěže

lysolaje-x3lysolaje-x2lysolaje-x1lysolaje-x4

 

heřmanice

heřmanice

rekonstrukce a dostavba venkovského domu, Heřmanice u Králík

Zděný venkovský dům v obci na severním pomezí Čech a Moravy, dochovaný téměř v původní podobě, je přizpůsoben dnešním požadavkům na bydlení a doplněn o samostatně přístupnou část pro ubytování hostů. Návrh ponechává přízemí v původním stavu, soustředí se na úpravy podkroví. Všechny prvky původního krovu i původní schodiště jsou zachovány. Podoba krovu vede k osazení koupelen do centrální části dispozice; ložnice mají ložnicová patra umístěná na hambalku. Střecha je doplněna střešními okny, krytina je z recyklovaných plastů, pohledově připomínajících historickou térovou krytinu. K domu jsou připojeny lehké dřevěné přístavby. Na severní štítové stěně je umístěno kovové schodiště pro samostatnou bytovou jednotku a několik nových oken. Okna jsou umístěna současným způsobem, nesnaží se zastřít, že se jedná o novodobý doplněk k historickému domu.

projekt 2005

 

čapkova

čapkova

soutěžní návrh bytového domu na nároží, Písek

Rozpolcený charakter místa volá po dotvoření nároží za pomoci výrazného jednotícího prvku. Zvolili jsme jednoduchou formu, která ukončuje klasickou uliční frontu netradičním přístupem – odsazením objektu od stávající skupiny domů vzniká dialog mezi dvěma rozdílnými způsoby stavění. Diagonální předěl mezi dvěma typy fasád je nejvýraznější architektonický prvek objektu, který podporuje dynamiku stoupající ulice a zvýrazňuje nároží. Výrazně protáhlý objekt je pavlačový dvojtrakt s jižní orientací, subtilní pavlač je zřetelná z náměstí, lehké úložné boxy s poloprůsvitnými zabarvenými stěnami na pavlačích vytvářejí příjemnou pohledovou hru na severní fasádě.

projekt 2004

capkova-01capkova-02capkova-03capkova-04capkova-05

 

lysá nad labem

lysá nad labem

soutěžní projekt domova pro seniory ve středu města

Domov pro seniory, přímo navazující na historické Náměstí Bedřicha Hrozného v Lysé nad Labem, splňuje soudobý trend integrace těchto zařízení do center měst. Objekt o kapacitě 96 bezbariérových lůžek tvoří nízké pavilony rozprostřené v zahradě podél páteřní propojující komunikace. Mezi objekty vznikají komorní zahrádky a dvory, respektující stávající vzrostlé stromy. Společné prostory a služby zakončují hlavní osu. Hmoty navrhovaných domů ctí autenticitu a historický vývoj této části města.

lysa-skica

Směrem k sousední budově školy vzniká nádvoří určené k setkávání. Kromě ordinací lékařů je zde malý sál určený pro hudební nebo dramatická představení a výstavy. Meditační posezení a kaple jsou umístěny u nejstarších stávajících stromů, na které navazuje původní park.

projekt 2004

spolupráce Atelier Šesták

vítězný projekt vyzvané architektonické soutěže

lysa-x1lysa-x2lysa-x3lysa-x4lysa-x5lysa-x6lysa-x7